Overview
- Updated On:
- February 12, 2026
- 2 Bathrooms
- 2 Garages
- 1,542 ft2
- Year Built:1898
Property Description
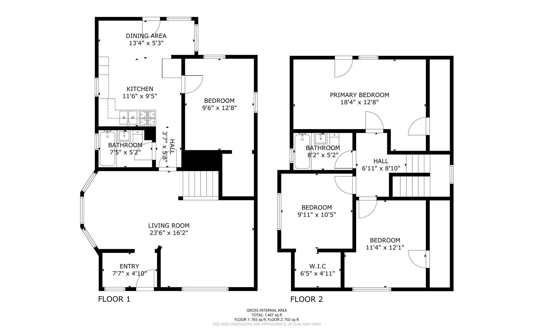
Welcome to this property located in Forest Park, IL. featuring 4 bedrooms, 2 bathrooms, 1,542 square feet of living space. Built in 1898. this home is offered at $399,900.
Built in 1898 and lovingly held for more than six decades by its current owner-only the third steward in the home’s long history-this four-bedroom, two-bath Forest Park residence is a rare offering where character, continuity, and convenience intersect. From the moment you arrive, the home speaks to a bygone era of craftsmanship and permanence, while still fitting seamlessly into modern life. Generous room sizes, tall ceilings, and a natural flow make it ideal for both everyday living and hosting. Four true bedrooms provide flexibility for family, guests, or work-from-home needs, while two full bathrooms add comfort and practicality. Step outside and you’ll find a spacious deck designed for connection-morning coffee, summer dinners, and lively outdoor gatherings all have a natural place here. It’s an extension of the home’s welcoming spirit and a setting where memories are meant to be made. Location elevates everything. Enjoy close proximity to the library, shopping, and dining, with easy access to Chicago via nearby commuter train routes. River Forest and Oak Park are just moments away, offering even more culture, parks, and amenities-while Forest Park’s own strong community feel keeps you grounded. Homes with this level of history, care, and location simply don’t come along often. Come see it before it’s gone!
Climate control includes steam, radiator(s) heating and none cooling. A unfinished, full, walk-out access basement provides additional space.
The property sits on a 50 x 125 lot. with 4 parking spaces (garage door opener, yes, detached, owned, garage).
Utilities include lake michigan, public water and public sewer sewer.
Located in Cook County.
Annual property taxes are $1,356 (as of 2024).
- Principal and Interest
- Property Tax
- HOA fee



























