Overview
- 356987
- Property ID
- Updated On:
- April 21, 2026
- Independent Homes
- Category
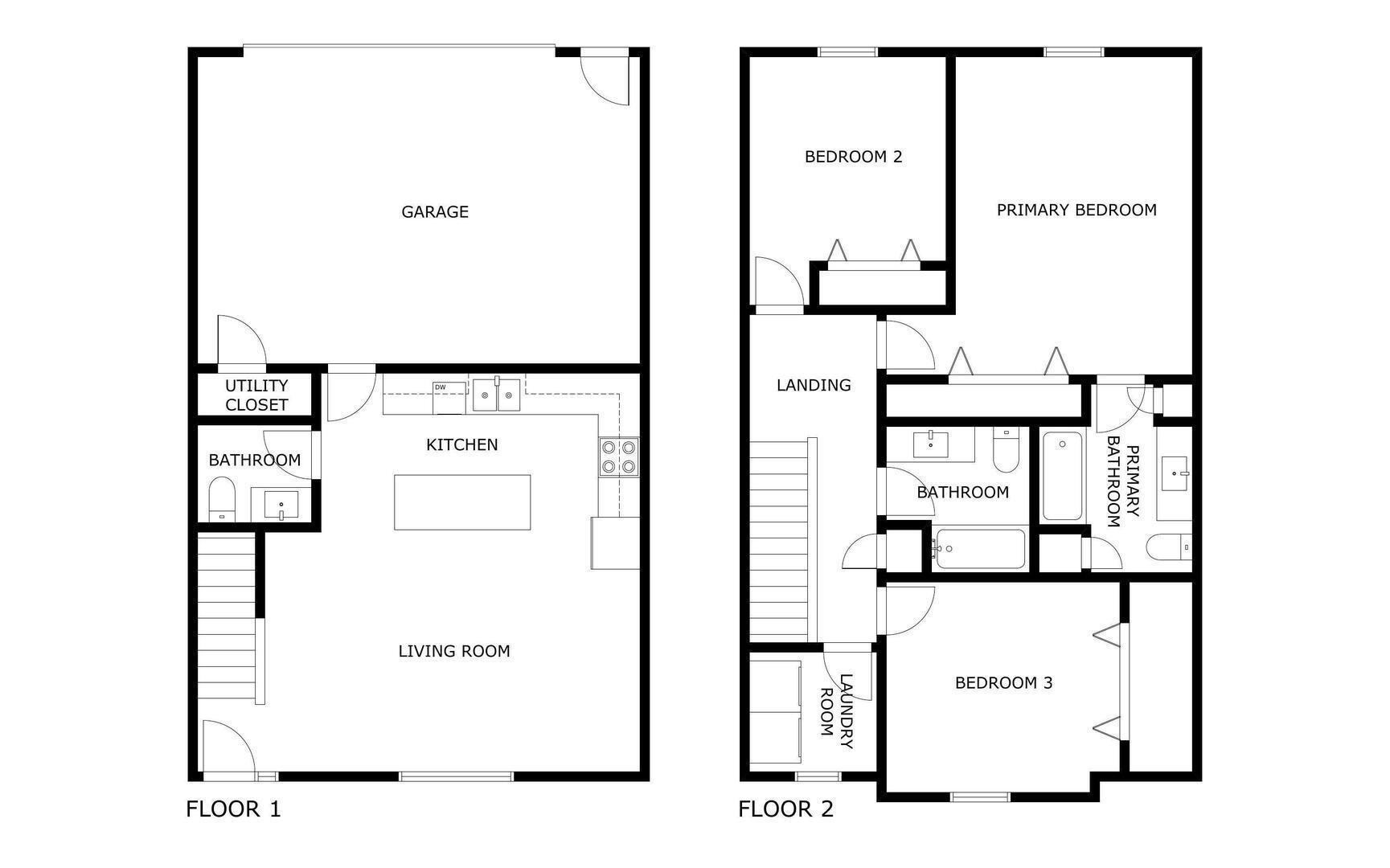
- 3
- Bedrooms
- 3
- Bathrooms
- 1,467 ft2
- Property Size
Description
Welcome to these stunning new construction townhomes featuring 3 bedrooms, 3 bathrooms, and a spacious 2-car garage. Designed for modern living, these homes combine comfort, style, and convenience. All three bedrooms are located on the second floor, along with a laundry room for added ease and efficiency, creating a private and functional retreat separate from the main living areas. Centrally located, you’ll enjoy being just minutes from grocery stores, medical facilities, shopping, large employers, and the charm of historic downtown. Spend weekends along the riverfront or take advantage of the easy highway access for a quick commute. With modern layouts and quality finishes, these townhomes are the perfect opportunity to enjoy comfort and convenience all in one place. Now for rent!





















