Overview
- 288906
- Property ID
- Updated On:
- April 21, 2026
- Independent Homes
- Category
- 4
- Bedrooms
- 2
- Bathrooms
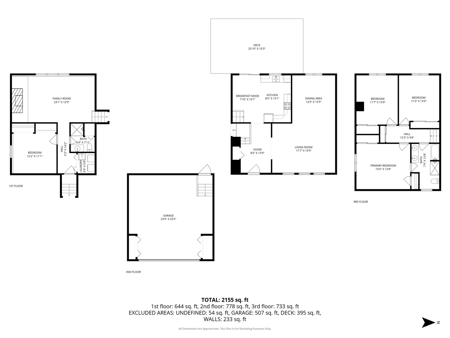
- 2,252 ft2
- Property Size
- 0 ft2
- Property Lot Size
Description
Welcome to your next home! This River Oaks split level has so much to offer. Main level features great sized living and dining room with vaulted ceilings! Foyer with cedar ceilings and brick wall! Kitchen with recessed lighting, all stainless steel appliances, granite counter-tops, crown molding, ceramic flooring and so much more. Separate eat in area overlooking beautiful backyard! Lower level family room with a beautiful brick fireplace, cedar ceiling and new flooring! This level also has a nice sized bedroom and/or office, full bath and laundry area with washer, dryer and sink. 2nd level features 3 bedrooms with hardwood flooring and a 2nd full bath. Additional features include a partial crawlspace with access from family room for storage! 2+1/2 car garage with storage areas! Huge backyard with shed and fire-pit! Brick and siding exterior! Electronic fence As/Is (Owner never used) Roof/gutters/downspouts approximately 6 years old. Newer furnace 2021. Washer & Dryer approximately 1+1/2 years old. A few windows have been replaced. Home is being Sold As/Is. Needs some updating and TLC. Great opportunity to make it your own! Great location! Troy schools! Close to major expressways!
- Principal and Interest
- Property Tax
- HOA fee
- Private Mortgage Insurance



























