Overview
- 368202
- Property ID
- Updated On:
- April 21, 2026
- Independent Homes
- Category
- 2
- Bedrooms
- 2
- Bathrooms
- 1,402 ft2
- Property Size
- 0 ft2
- Property Lot Size
Description
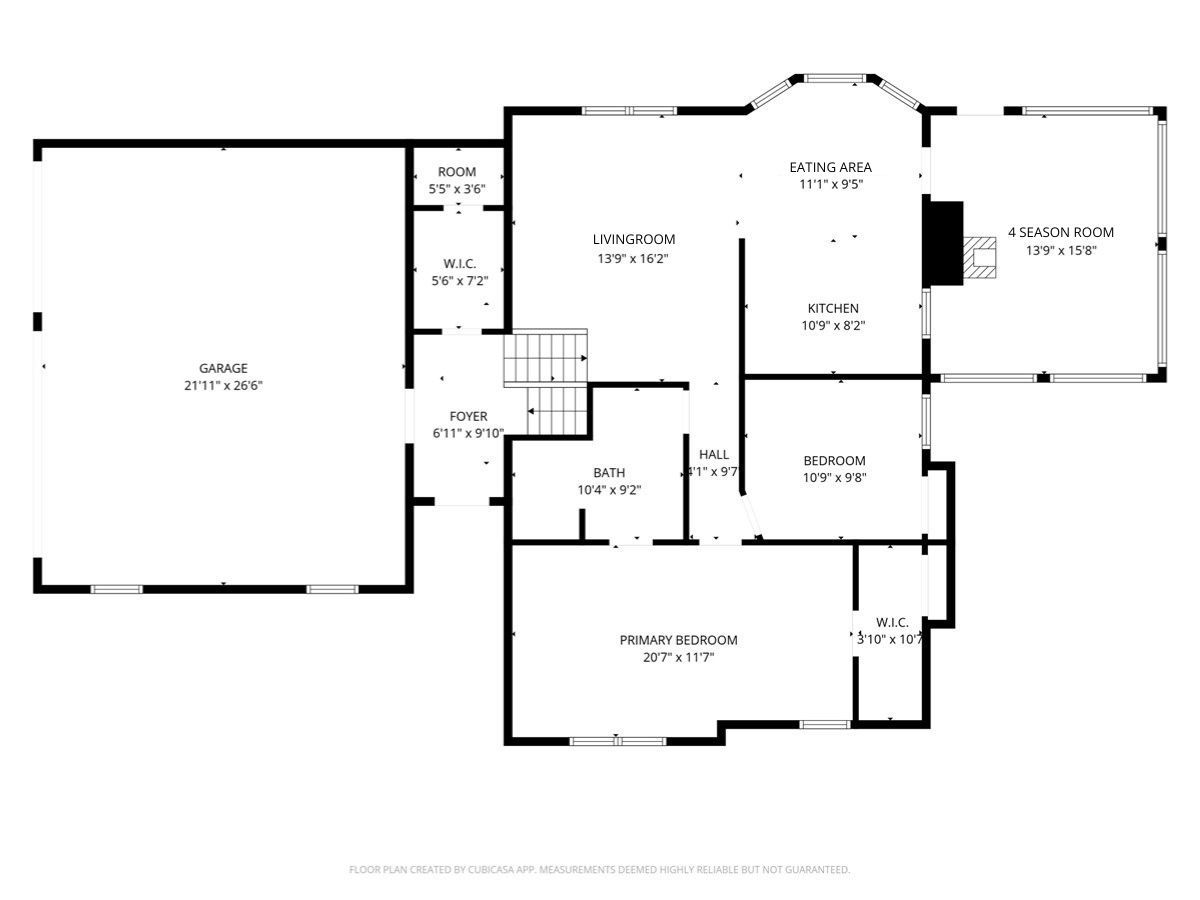
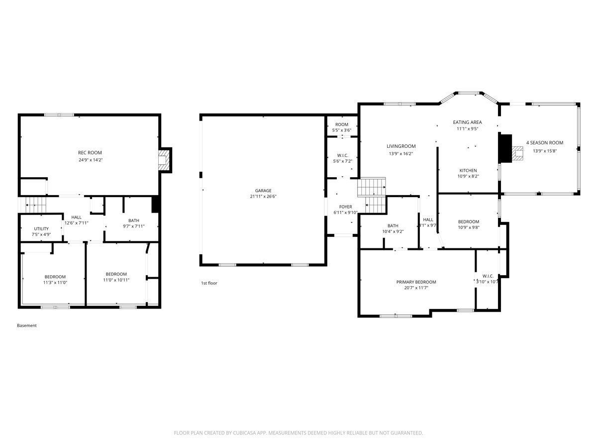
3-bed, 2-bath home in Davenport located in the desirable Oakbrook subdivision-set on a corner lot with standout features & extensive updates throughout. This split foyer design offers spacious living areas, highlighted by vaulted ceilings & skylights that bring in abundant natural light. The main level includes a bright living room, dining area, kitchen, 2 bedrooms, & a full bathroom. The primary bedroom features a large walk-in closet & direct access to the shared bath. Just off the dining area, the 4-season room provides additional living space with its own heating & cooling system for year-round use. The lower level adds even more versatility with a rec room, full bathroom, 2 additional bedrooms, & a laundry room. Exterior features include a 3-car garage, fenced yard, & a large deck. Numerous updates enhance the home’s value & functionality, including HVAC (2021), roof & gutters (2021, refreshed 2023), siding (2007), Anderson windows (2010), & fencing (2010). Interior improvements include flooring & paint (2017), kitchen faucet (2017), & a fully renovated primary bathroom (2021). The 4-season room has updated windows (2024) & a new A/C unit (2025). A well-maintained home in a sought-after location-schedule a showing today
- Principal and Interest
- Property Tax
- HOA fee
- Private Mortgage Insurance
























































