Overview
- 462562
- Property ID
- Updated On:
- April 24, 2026
- Independent Homes
- Category
- 4
- Bedrooms
- 3
- Bathrooms
- 2,387 ft2
- Property Size
Description
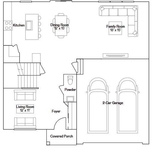
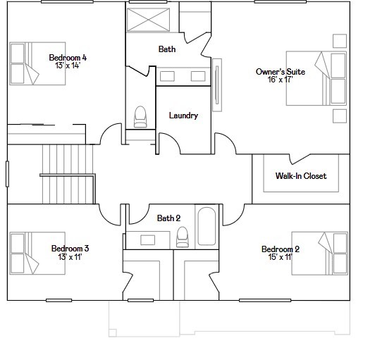
READY FOR AUGUST DELIVERY!! SPECIAL INCENTIVES AVAILABLE! Homesite #0196 Take in the beauty of the Townsend, a home where sophisticated design and everyday comfort come together seamlessly. This thoughtfully crafted residence features four bedrooms, two full bathrooms, a powder room, and a spacious living room, providing ample space for both relaxation and entertainment. The first floor boasts an airy, open-concept layout, with luxury vinyl plank flooring unifying the kitchen, dining area, and family room. At the heart of the home, the chef-inspired kitchen impresses with sleek quartz countertops, premium stainless-steel appliances, 42″ cabinetry in your choice of finishes, and a large center island perfect for meal prep and gatherings. Upstairs, the owner’s suite is a paradise, offering a spacious walk-in closet and a spa-like en-suite bathroom with double sinks and a deluxe shower, creating the perfect space for unwinding. Three additional bedrooms and a full bathroom are located nearby, while a second-floor laundry room adds convenience to everyday living. With its smart design and premium finishes, the Townsend offers a lifestyle that blends comfort, style, and functionality, perfectly suited for the way you live today. Exterior will be GREYSTONE color siding with RIPLEY color brick. (pic for reference ONLY) *Photos are not this actual home* ** Located in the charming village of Minooka, Illinois, Arbor Lakes offers the perfect blend of small-town tranquility and everyday convenience-just a short drive from Chicago, Illinois. Minooka is known for its welcoming, close-knit community, quality schools, and easy access to local dining and shopping along Mondamin Street. Outdoor living is a highlight, with nearby parks and recreation including Aux Sable Springs Park and Lions Park. In the warmer months, families can cool off at the splash pad at Summit Park-a local favorite. Residents are served by the highly regarded Minooka Community Unit School District 201, with schools including Aux Sable Elementary, Minooka Junior High, and Minooka High School . At Arbor Lakes, you’re not just buying a new home-you’re joining a connected, amenity-rich community designed for comfortable, modern living.
- Principal and Interest
- Property Tax
- HOA fee
- Private Mortgage Insurance

























