Overview
- 345178
- Property ID
- Updated On:
- April 20, 2026
- Independent Homes
- Category
- 4
- Bedrooms
- 3
- Bathrooms
- 3,750 ft2
- Property Size
- 0 ft2
- Property Lot Size
Description
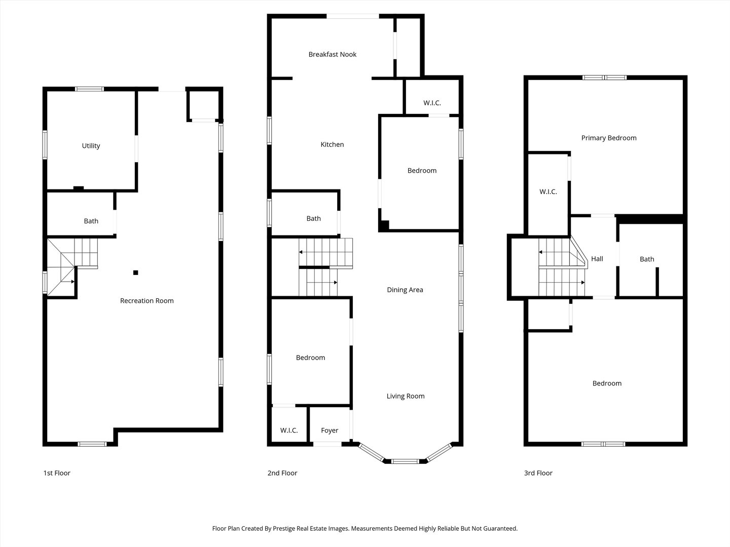
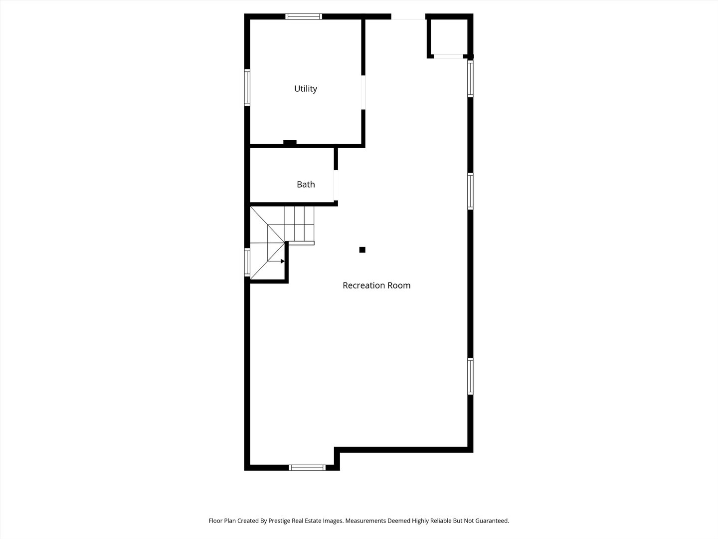
Welcome to 10141 S. Emerald Avenue – where over a century of Chicago craftsmanship meets a brand-new interior. This stunning 2-story detached single-family home has been completely rehabbed in 2026, blending timeless character with modern finishes across an expansive 3,750 square feet of living space. Step inside to a massive 3015 main-level living room anchored by gleaming hardwood floors that flow throughout the main and second level the 1615 kitchen delivers the workspace serious home cooks demand, while the 2045 family room in the basement gives you square footage that most Chicago homes simply can’t offer. The 1720 master bedroom is a true retreat. Three additional bedrooms on the second level offer generous proportions for family, guests, or a home office. The full walkout basement is finished with ceramic tile, full ceiling height, and direct exterior access – ideal as an in-law suite, rental unit, or entertainment hub. 2-car detached garage with opener. Deck. 125-ft deep lot. Central air. Gas heat. Circuit breaker electric. Stone foundation. Property taxes just $1,491/year (2024). School bus, commuter rail, and interstate access. Under $96/sq ft. Fully rehabbed. Move-in ready. This one will not sit.
- Principal and Interest
- Property Tax
- HOA fee
- Private Mortgage Insurance



































