Overview
- 194044
- Property ID
- Updated On:
- April 12, 2026
- Independent Homes
- Category
- 2
- Bedrooms
- 3
- Bathrooms
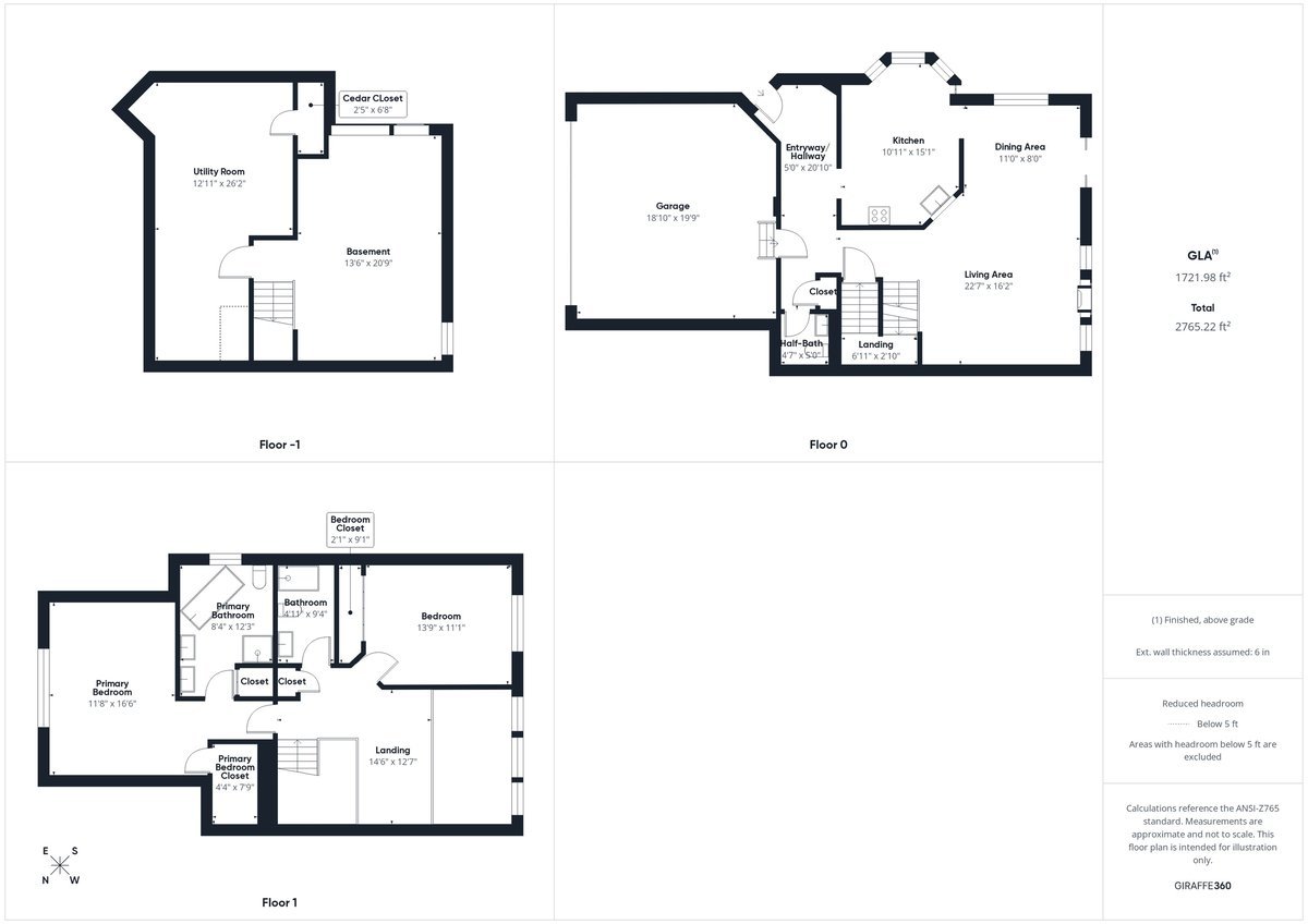
- 1,721 ft2
- Property Size
Description
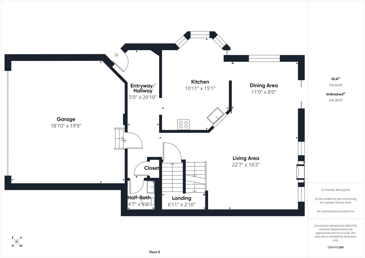
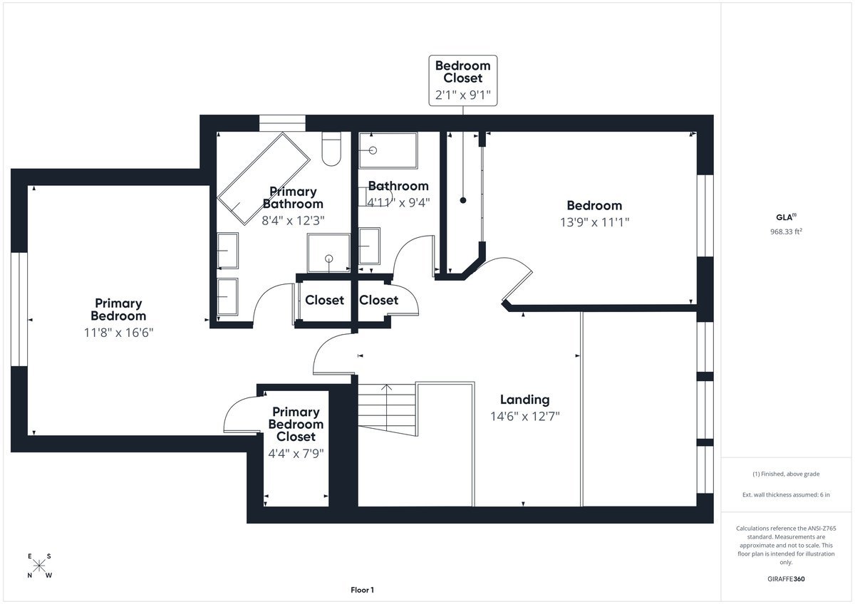
Welcome to 1056 Mattande Lane, a thoughtfully updated 2-bedroom, 2.1-bath home offering approximately 1,633 square feet of comfortable living space in a convenient Naperville location. Built in 1990, the home features a practical layout designed for everyday living and entertaining, with inviting living areas, a fireplace focal point, and a seamless flow between rooms. Numerous major updates provide peace of mind for the next owner. The kitchen has been refreshed with updated appliances, including refrigerator, stove, microwave, and dishwasher, all replaced within the last four years. Additional mechanical improvements include a furnace, air conditioning unit, and hot water heater replaced in 2020. Exterior improvements include a new roof and siding completed in 2024, along with a new deck installed in 2025, creating an ideal space for outdoor enjoyment and entertaining. The home offers a manageable footprint while still providing comfortable living space, including generously sized bedrooms and 2.1 bathrooms to accommodate a variety of living arrangements. There is an upstairs loft area, currently used as an office space, but can easily be altered into another living space or bedroom. Exterior construction and classic design elements contribute to long-term durability and timeless appeal. Located in Naperville, the property benefits from convenient access to shopping, dining, parks, and major transportation routes, while being situated within one of the Chicago area’s most established suburban communities known for strong long-term housing demand and local amenities. This property presents an excellent opportunity for buyers seeking an updated home with major improvements already completed, allowing for both comfort and confidence in long-term ownership.
- Principal and Interest
- Property Tax
- HOA fee
- Private Mortgage Insurance



































