Overview
- 157284
- Property ID
- Updated On:
- April 11, 2026
- Independent Homes
- Category
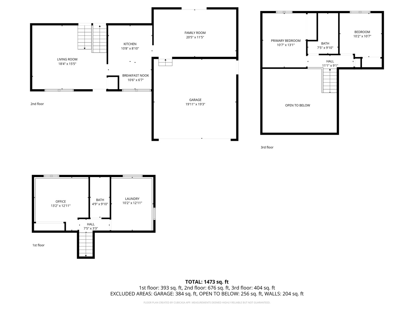
- 3
- Bedrooms
- 2
- Bathrooms
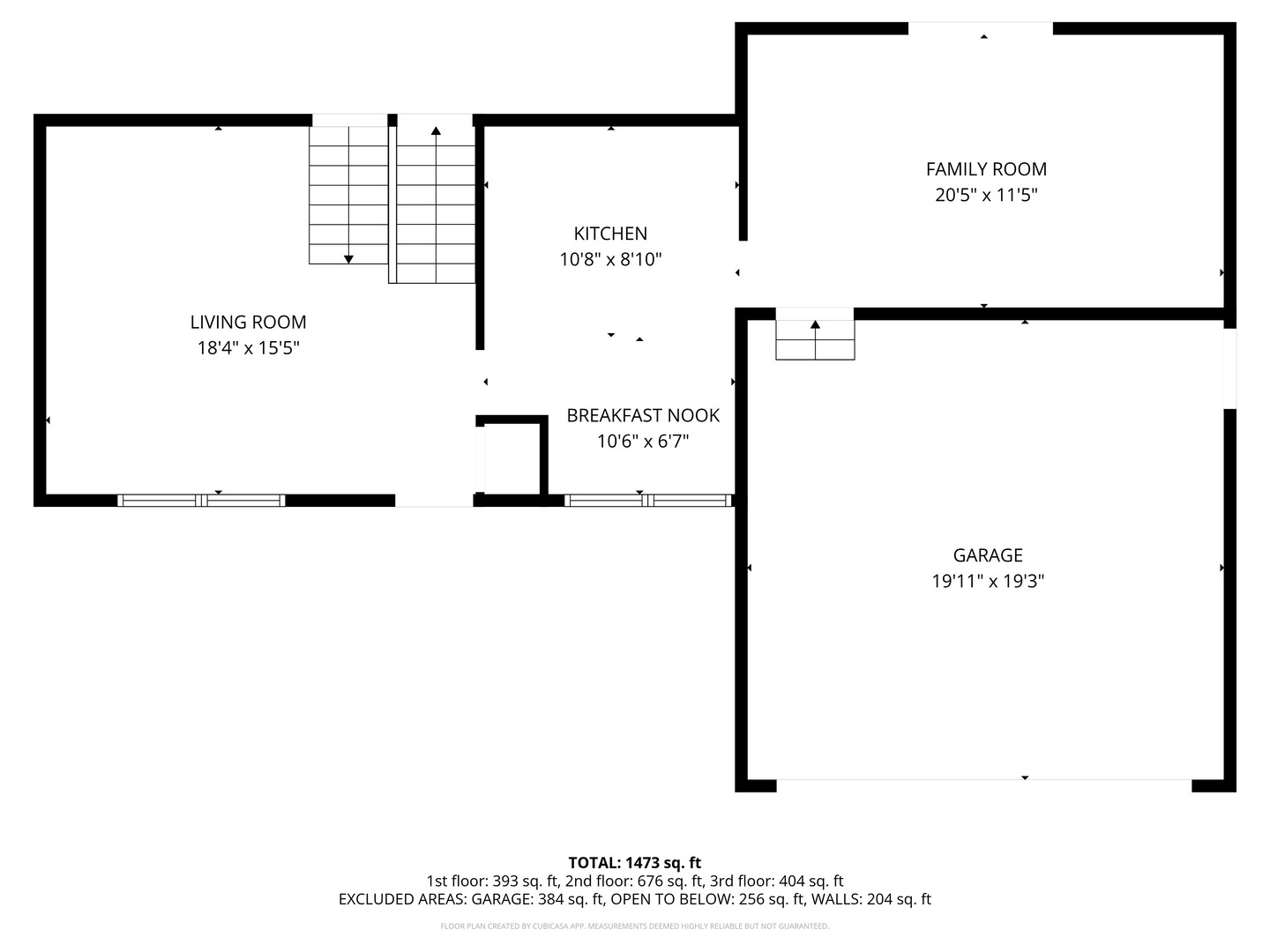
- 2,019 ft2
- Property Size
- 0 ft2
- Property Lot Size
Description
** Multiple offers received, highest and best due 9am on Monday, 4/13. We will respond at 5pm on Monday. ** Incredibly well maintained and ideally located, this spacious 3-bedroom, 2-bath home offers over 2,000 square feet of finished living space and a versatile tri-level layout designed for both comfort and functionality. The home features a bright eat-in kitchen, a welcoming living room with vaulted ceilings, and a generous family room-providing multiple spaces to relax or entertain. The kitchen is beautifully updated with timeless maple cabinetry, granite countertops, offering both style and efficiency. Pride of ownership is evident throughout, with a long list of updates already completed for the next owner. Recent improvements include brand new carpeting throughout (April 2025) and a freshly painted interior (2026). The kitchen was fully remodeled in 2012, while both bathrooms were updated in 2006 and 2007. Additional major updates include siding, gutters, downspouts, and coach lights (2015), windows replaced in 2008 and 2011, and a sliding glass door to the deck replaced in 2011. Mechanical updates offer added peace of mind, including a new washer, dryer, and oven (2020), refrigerator and dishwasher (2019), water heater (2017), and sump pump (2020). The location truly sets this home apart-ride your bike to the top-rated elementary school, enjoy weekends at the Farmer’s Market at the Dole, spend time at the Crystal Lake Country Club, or relax at the nearby beach. A truly move-in ready home in an unbeatable location, offering space, updates, and meticulous care throughout.
- Principal and Interest
- Property Tax
- HOA fee
- Private Mortgage Insurance
































