Overview
- 199471
- Property ID
- Updated On:
- April 12, 2026
- Independent Homes
- Category
- 3
- Bedrooms
- 2
- Bathrooms
- 1,686 ft2
- Property Size
- 0 ft2
- Property Lot Size
Description
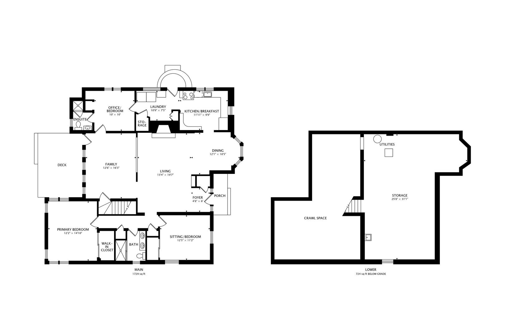
Come discover this beautifully maintained unique 3 bedroom, 2 bath ranch proudly offered for the first time on the market tucked away in Munster’s HISTORIC and most charming neighborhood, perfectly positioned on a large picture-perfect corner lot across from serene park-like open space. From the moment you arrive, this home stands out with its inviting curb appeal, spacious layout, quality construction, beautiful marble window sills and the convenience of a detached 2-car garage ideal for storage, hobbies, or extra parking. Step inside to a unique open floor plan designed for effortless living and entertaining. The spacious living room features a cozy gas fireplace, perfect for crisp winter nights and creating a warm, holiday-ready atmosphere. The large family room is filled with natural daylight, offering a bright retreat you’ll enjoy through every season. An adjacent dining room flows seamlessly into the expansive eat-in kitchen, complete with granite countertops, a stainless-steel farmhouse sink, abundant cabinetry, and all premium appliances including a NEW KitchenAid refrigerator and a newer KitchenAid dishwasher. Designed for easy living, the home includes MAIN LEVEL LAUNDRY. Down the hall are two generously sized bedrooms with a full bath, while the third bedroom just off the kitchen offers added privacy with its own attached 3/4 bath. The home also features an unfinished basement, a blank canvas ready for storage, recreation, or future expansion. Outside, enjoy the peace and charm of this sought-after location just minutes from the South Shore Train, award-winning schools, shopping, dining, entertainment, parks, and major highways. Whether you’re commuting, exploring the region, or soaking in the neighborhood’s historic character, this home places you right where you want to be. Comfort, location, and timeless appeal this Munster gem is not one to miss. Welcome home
- Principal and Interest
- Property Tax
- HOA fee
- Private Mortgage Insurance








































