Overview
- 196936
- Property ID
- Updated On:
- April 12, 2026
- Independent Homes
- Category
- 4
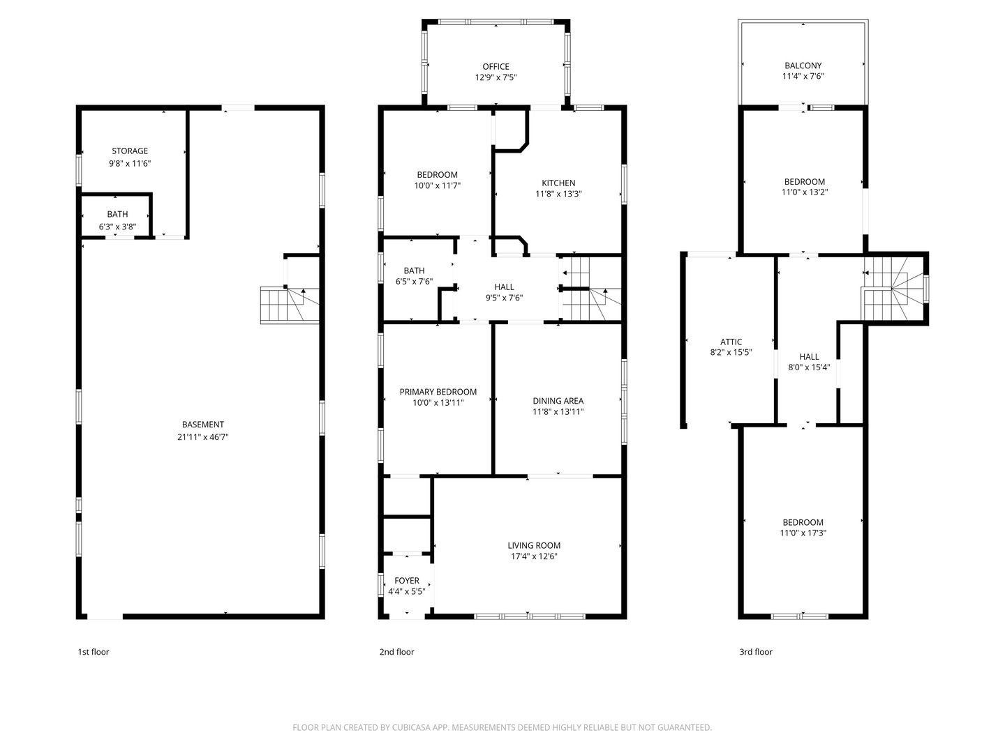
- Bedrooms
- 2
- Bathrooms
- 1,851 ft2
- Property Size
- 0 ft2
- Property Lot Size
Description
This is the pride of “Home” ownership and knowing family will gather together for years to come. Welcome to this and well-maintained and loved home. The main floor featuring a large living room that is open to the welcoming dining room and enjoy making dinner in your kitchen with Maple Cabinets, Granite Counter Tops and Glass back splash along with SS appliances. Just off the kitchen you can sit and soak up the sun on your enclosed sunroom, perfect day and night. The master bedroom and 2nd room are on the first floor with a full bath and on the second floor you have a large 3rd bedroom as well as the 4th bedroom that has a walk out balcony. The second bedroom and landing just renovated in 2025. The Full basement ,with exterior access, has the laundry area and a New 1/2 bath installed in 2025. Enjoy a quiet night in your backyard while you add to the vegetable garden and cook out with friends and family. Updates include HVAC 2024, security doors 2024, Roof and Siding in 2023. There’s nothing left to worry about but moving in! Welcome Home!!
- Principal and Interest
- Property Tax
- HOA fee
- Private Mortgage Insurance

























