Overview
- 93805
- Property ID
- Updated On:
- April 3, 2026
- Independent Homes
- Category
- 2
- Bedrooms
- 3
- Bathrooms
- 2,200 ft2
- Property Size
Description
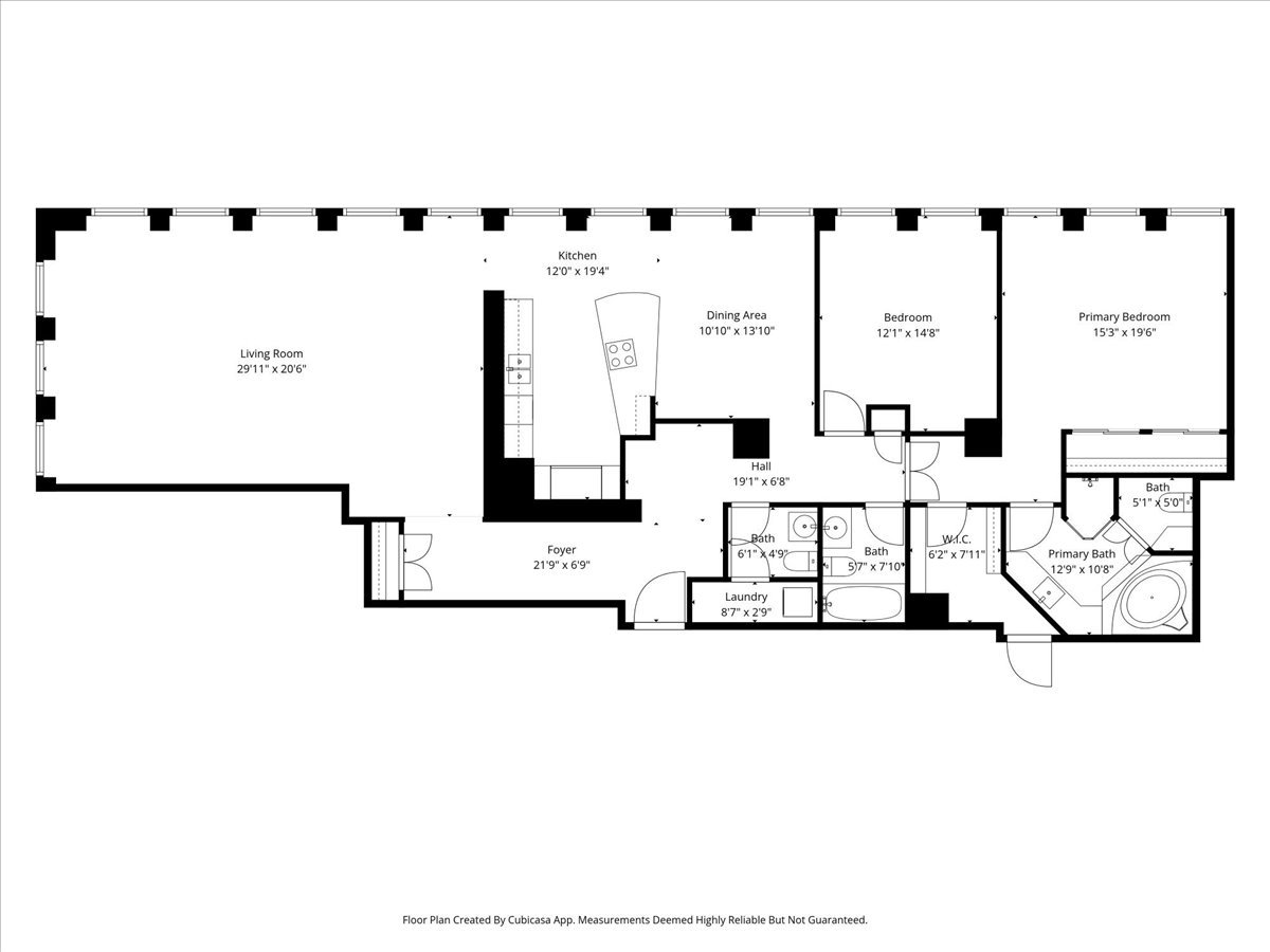
This 2 bedroom, 2.1 bathroom residence in one of Gold Coast’s most iconic Lake Shore Drive high rises, boasts a full lakefront view, expansive windows, and SE exposure for a sunny, spacious residence. The large living room has hardwood floors, a roomy layout, and added modern recessed lighting. The kitchen is stylish and updated, and connects seamlessly to the designated dining room. Continue down the hall to the second bedroom, full bathroom, or half bathroom featuring a hidden laundry room. The primary bedroom sits at the back of the apartment, for added privacy and space. Enjoy the large closet, city views, and massive bathroom with a soaker tub, toilet closet, and standing shower. All bathrooms feature heated floors. The building has a gym, shared patio, and 24 hour doorman. Valet parking is available in the building for $250 a month per car.
- Principal and Interest
- Property Tax
- HOA fee
- Private Mortgage Insurance





























