Overview
- 311086
- Property ID
- Updated On:
- April 19, 2026
- Independent Homes
- Category
- 4
- Bedrooms
- 3
- Bathrooms
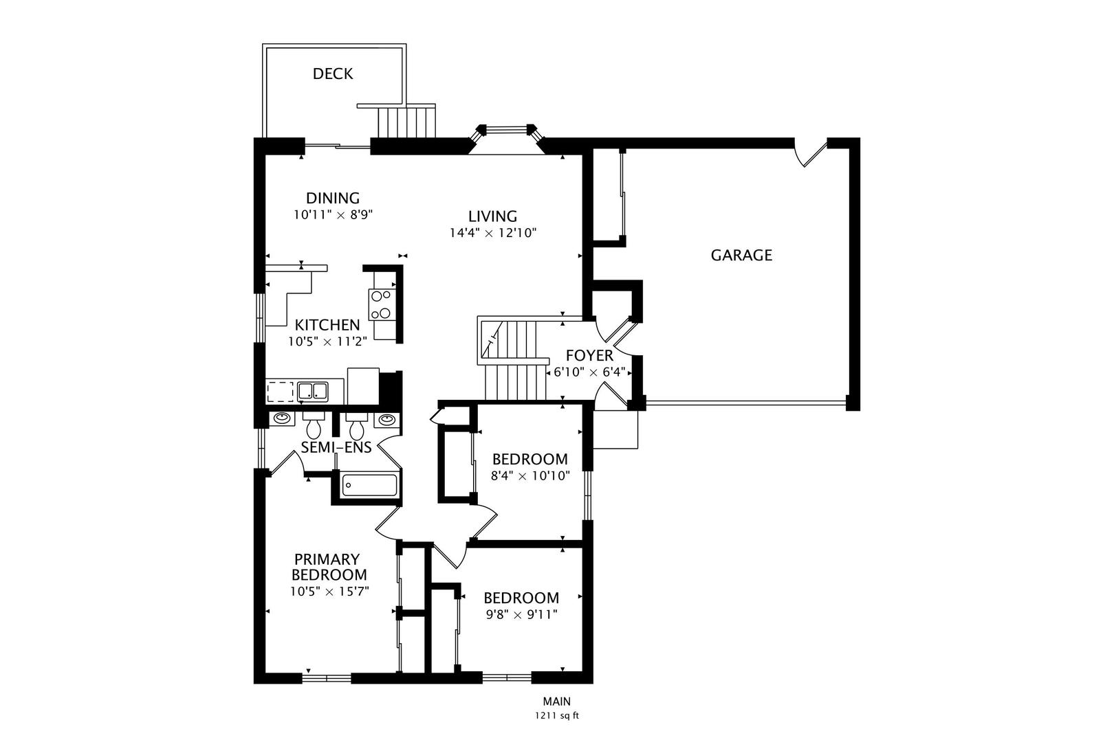
- 1,211 ft2
- Property Size
- 0 ft2
- Property Lot Size
Description
Charming 4 bed, 2.5 bath north-facing single-family home in desirable Foxworth subdivision of Lombard, located in a highly rated school district. Well-maintained with solid bones, major mechanicals updated in the last 5 years (Furnace/AC-2020, water heater -2022) and new roof (2025). Main level features hardwood floors, spacious living area, and 3 good-sized bedrooms. Finished basement includes 4th bedroom, full bath, fireplace, dry bar, and ample storage. Large, fenced backyard with shed. Updates include windows and 6-panel oak doors (2016) and asphalt driveway (2019). Conveniently located near I-355, I-88, Metra, and Oakbrook shopping/dining. Property sold AS-IS.
Bedrooms
3
4
Climate Control
Air Conditioning
Heating
Floor Area
1,000-2,000 sqft
Garden
Yes
Parking
Garage
Other Features
6 Panel Door(s)
Asphalt
Attached
Central Air
Deck
Natural Gas
Other
Public
Public Sewer
Shed(s)
Vinyl Siding
$2,178.29
per month
- Principal and Interest
- Property Tax
- HOA fee
- Private Mortgage Insurance
$ 1,647.23
Similar Listings
Featured
For Sale
1147 Steeple View Drive, Long Grove, IL
$1,570,000
Beds:
4Baths:
4Size:
5,480 ft2
Nestled within the prestigious Grove Country Club community and just minutes from charming ...
Featured
For Sale
15 Terra Vita Court, South Barrington, IL
$2,800,000
Beds:
7Baths:
9Size:
13,172 ft2
Italian/mediterranean Masterpiece In Terra Vita, South Barrington. Experience Over 13,000 ...
















































