Overview
Description
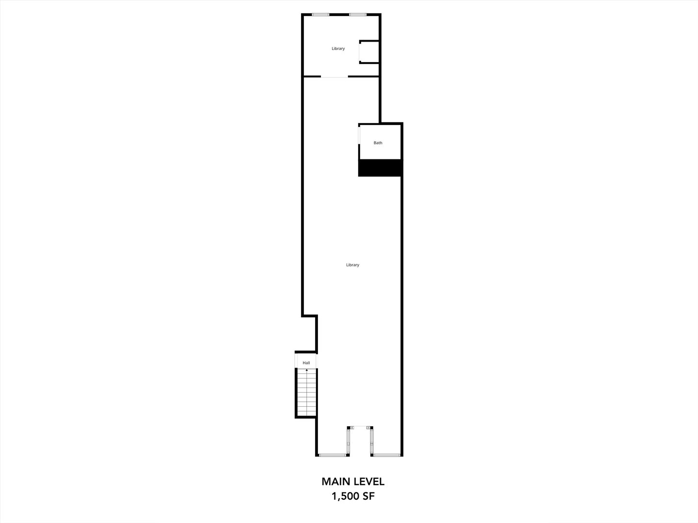
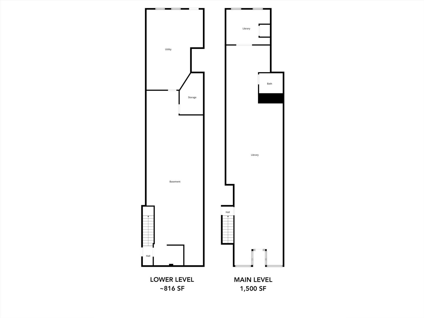
Pleased to present the opportunity to lease a premier 1,500 SF flagship retail storefront for lease at 1102 W 18th Street in the heart of Pilsen’s historic 18th Street Corridor. Located within a recently rehabbed mixed-use building, the space offers exceptional visibility, an expansive all-glass facade, approximately twelve-foot clear ceiling height, and a long, efficient floorplate stretching roughly eighty-five feet deep; ideal for modern retail, healthcare, wellness, boutique fitness, hospitality, or experiential concepts. An additional ~816 SF of usable lower-level space supports storage, office, treatment rooms, or other back-of-house operations. Presently home to Pilsen Community Books, the storefront benefits from strong neighborhood identity, high daily foot traffic, and continuous community engagement. The main level provides an open, flexible layout with outstanding branding presence along 18th Street, while the lower level adds valuable operational utility. Steps from iconic Thalia Hall – an 1892 Chicago Landmark and major cultural destination drawing concertgoers, diners, and nightlife activity – the property sits within ZIP code 60608, a growing trade area with more than 81,000 residents, a median age in the mid-thirties, and rising household incomes. The corridor has evolved beyond its historic hospitality roots, now attracting healthcare providers, wellness operators, boutique fitness studios, specialty retail, design and grooming concepts, and service-based businesses responding to increased demand from residents, students, and professionals from nearby UIC and the Illinois Medical District. High ceilings, deep layout, strong visibility, and additional lower-level space make the property well suited for medical, dental, optometry, behavioral health, med-spa, fitness, gallery, creative studio, home goods, community-oriented retail, cafe, bakery, dessert, wine bar, or fast-casual concepts. Pilsen’s long-standing artistic identity – including the National Museum of Mexican Art and the murals lining 16th and 18th Streets – enhances the appeal for gallery, exhibition, and creative uses, supported by ample natural light, flexible layout, and storage or studio potential in the lower level. Positioned directly on the 18th Street arts spine, the space offers immediate access to a built-in audience drawn to the corridor’s cultural programming, mural walks, and year-round community events.


































