Overview
- 88972
- Property ID
- Updated On:
- April 2, 2026
- Independent Homes
- Category
- 3
- Bedrooms
- 3
- Bathrooms
- 0 ft2
- Property Lot Size
Description
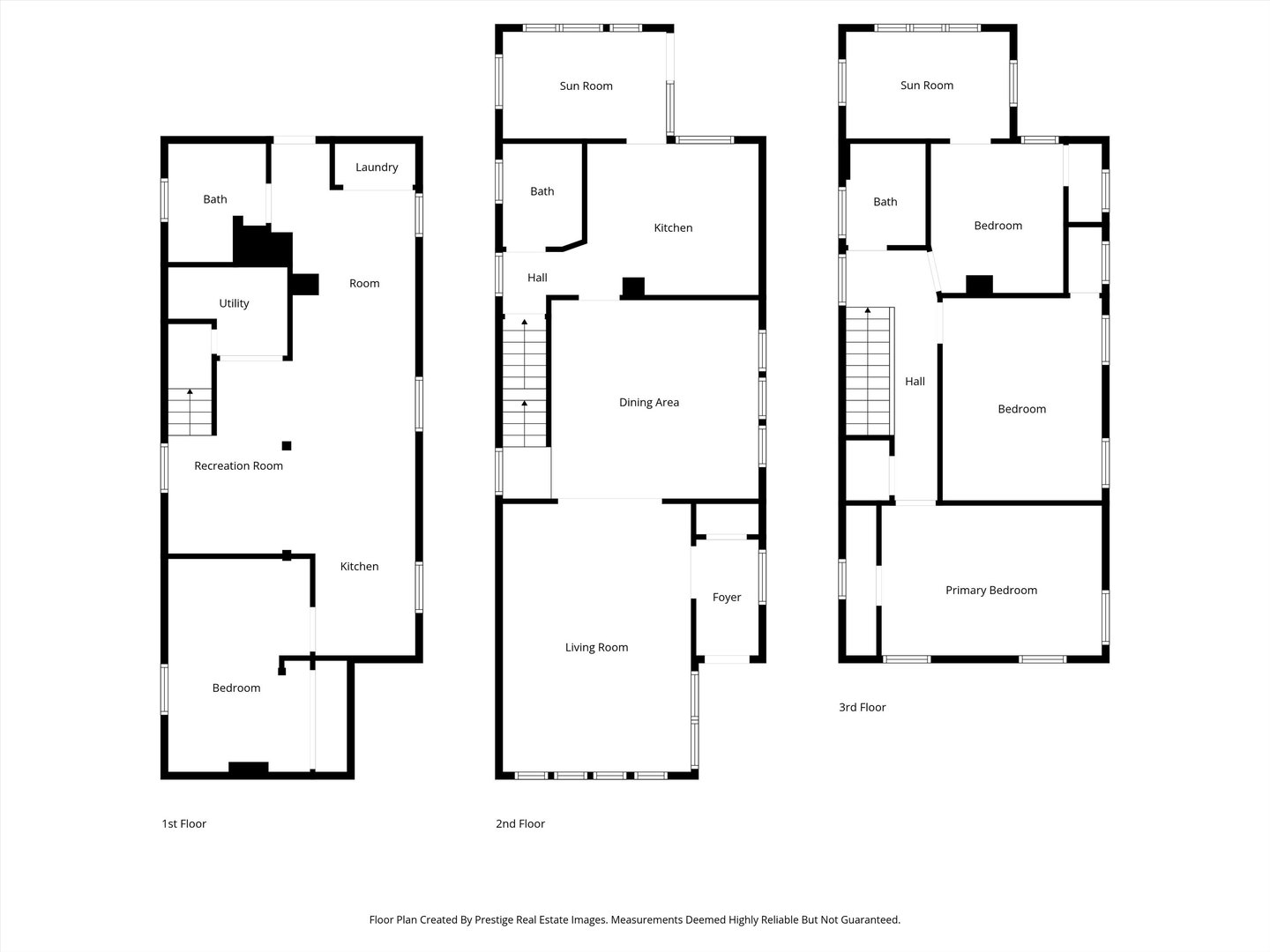
Beautifully maintained 4-bedroom, 2.1-bath home offering spacious living across three finished levels. The main floor features a bright living room, separate dining area, full kitchen, convenient powder room, and an inviting sun room perfect for relaxing or entertaining. The second level offers three generously sized bedrooms, a full bath, and an additional sun room for added living space or a home office. The finished lower level includes a large recreation room, second kitchen, laundry area, utility room, full bath, and a fourth bedroom-ideal for related living, guests, or extended family. Complete with a detached garage and conveniently located near schools, parks, shopping, and transportation.
- Principal and Interest
- Property Tax
- HOA fee
- Private Mortgage Insurance






































