Overview
Description
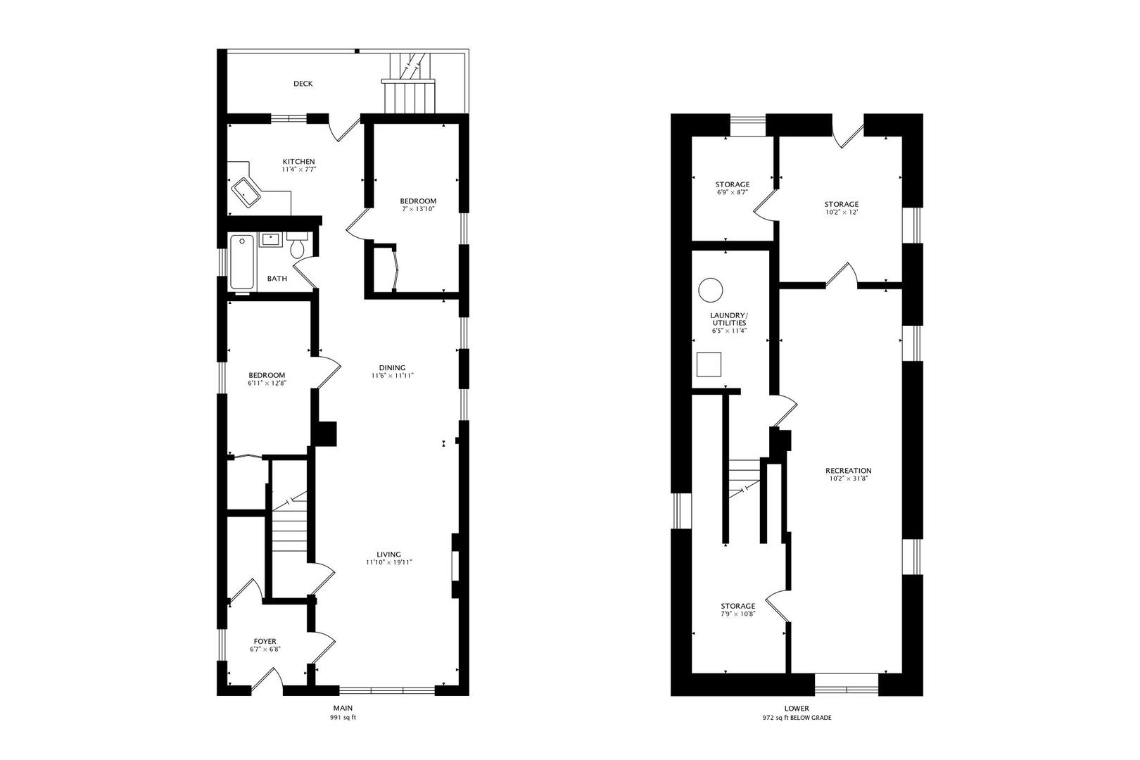
The first-floor unit offers a spacious duplex-down layout featuring a generous family room and has opportunity to create a 3rd bedroom or office , convenient laundry hookups in both units spa-inspired bathrooms, an electric heat fireplace, and abundant natural light-perfect for an owner-occupant. The second-floor unit includes 2 bedrooms and 1 bathroom nice size bedrooms . 2nd floor unit can accommodate a queen size bed . Located just minutes from highways 90/94 for effortless commuting. Separate utilities make management easy and efficient.
- Principal and Interest
- Property Tax
- HOA fee
- Private Mortgage Insurance



























