Overview
- 219605
- Property ID
- Updated On:
- April 13, 2026
- Independent Homes
- Category
- 3
- Bedrooms
- 2
- Bathrooms
- 1,513 ft2
- Property Size
- 0 ft2
- Property Lot Size
Description
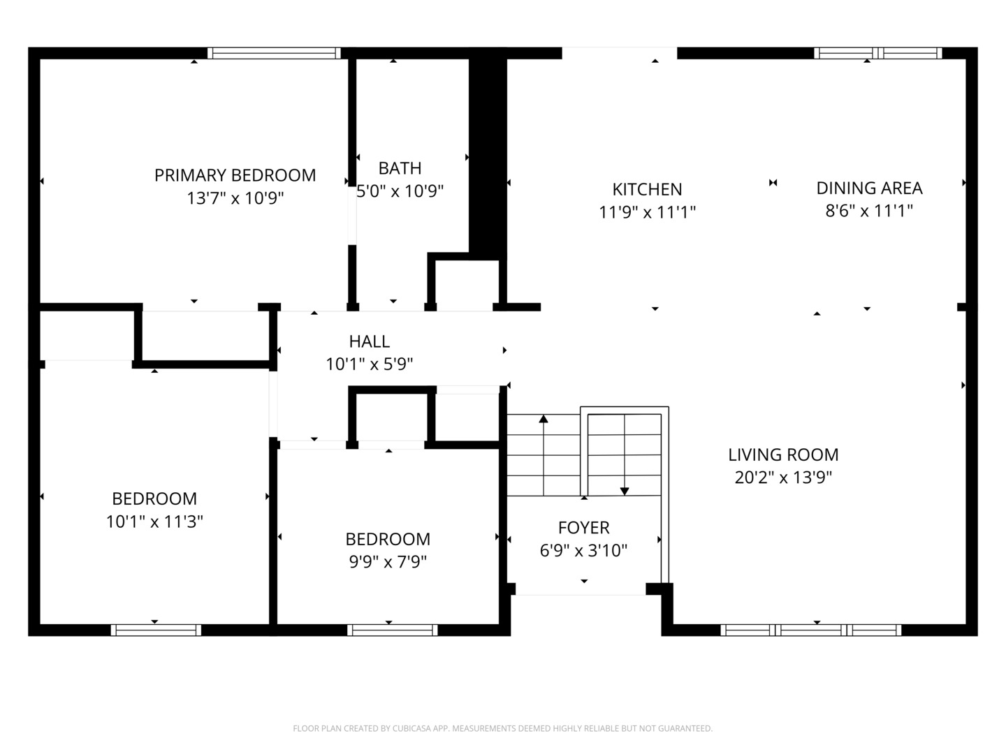
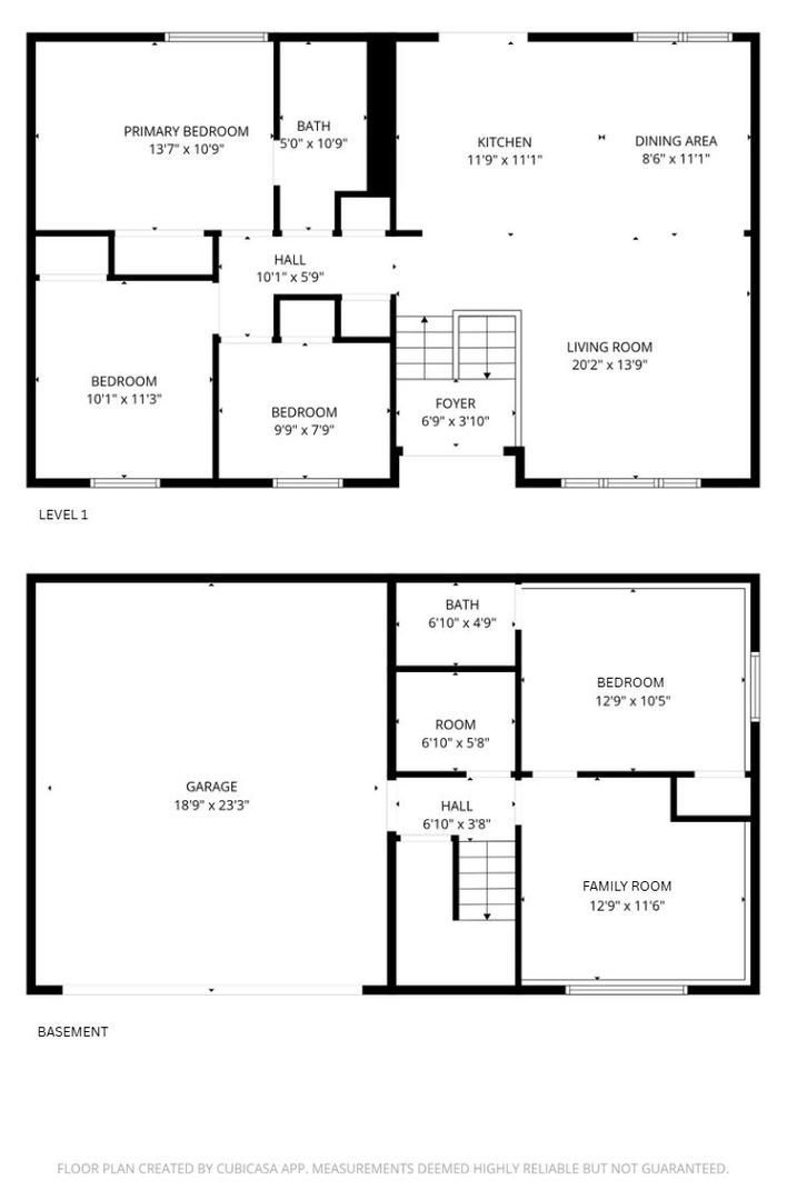
Welcome home to this modern raised ranch blending style and functionality! Featuring 4 beds and 2 baths, this home offers a bright open-concept living and dining area, plus a kitchen with quartz countertops, stainless steel appliances, and sleek finishes. Three bedrooms and a full bath also complete the main level. The partially finished basement adds a family room, 4th bedroom, and full bath, perfect for extra living space. Enjoy the deck and fenced yard, plus an attached 2-car garage. Great location near parks, shopping, and major roads. Book your tour today!
- Principal and Interest
- Property Tax
- HOA fee
- Private Mortgage Insurance




























