Overview
- 380095
- Property ID
- Updated On:
- April 22, 2026
- Independent Homes
- Category
- 4
- Bedrooms
- 3
- Bathrooms
- 2,408 ft2
- Property Size
- 0 ft2
- Property Lot Size
Description
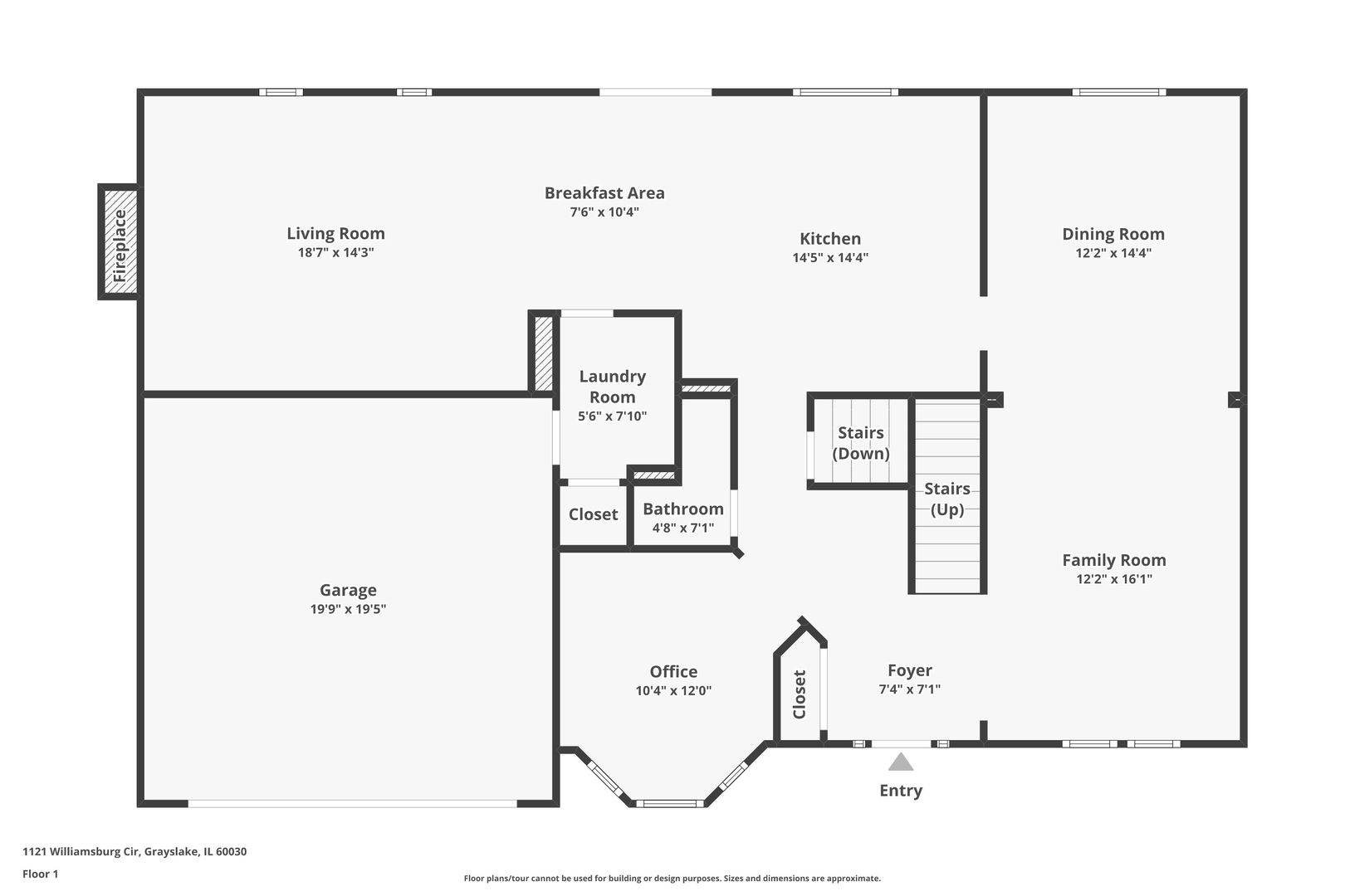
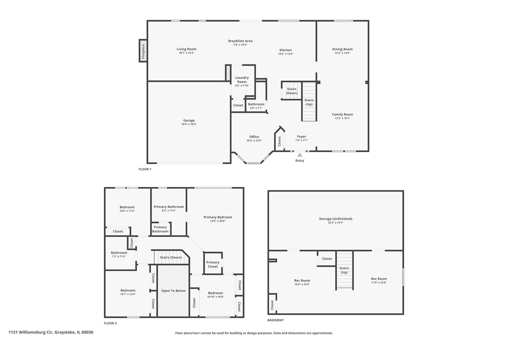
Welcome to your dream home nestled in the highly sought-after Chesapeake Farm subdivision of Grayslake! This spacious and inviting residence features 4 generously sized bedrooms and 2.5 well-appointed bathrooms, offering comfort and flexibility for everyday living and entertaining. Step inside to an open and airy floor plan that effortlessly connects the living and dining areas-ideal for hosting gatherings or enjoying cozy family evenings. The kitchen is a chef’s delight, showcasing updated appliances (2022, excluding dishwasher), ample counter space, and abundant cabinetry that inspires culinary creativity. Recent improvements provide peace of mind and modern convenience, including a new Roof (2020), updated water-resistant flooring (2022), new carpets (2023), all new light fixtures, and fresh paint throughout. Major system upgrades include a newer AC (2023), water heater (2017), water softener with reverse osmosis system (2022), newly installed thermostat, radon mitigation system, new windows (2018) and professionally cleaned air ducts (2025). The primary suite serves as a private retreat with an en-suite bathroom, while the additional bedrooms offer versatility for a growing family, home office, or guest accommodations.The primary suite has separate access to the 4th bedroom so it can used as extra dressing room or nursery Outside, enjoy a beautifully landscaped yard that provides privacy and a serene setting for outdoor relaxation. Chesapeake Farm is known for its friendly atmosphere and convenient access to shopping, dining, and recreational amenities. Walking and bike paths connect to Rollins Savannah, central park, and downtown Grayslake. Experience the perfect blend of comfort, style, thoughtful updates, and an unbeatable location in this charming Grayslake home. This move-in-ready home combines thoughtful updates with timeless comfort in a prime location-truly a must-see!
- Principal and Interest
- Property Tax
- HOA fee
- Private Mortgage Insurance







































