Overview
- 136658
- Property ID
- Updated On:
- April 2, 2026
- Independent Homes
- Category
- 4
- Bedrooms
- 4
- Bathrooms
- 2,544 ft2
- Property Size
- 0 ft2
- Property Lot Size
Description
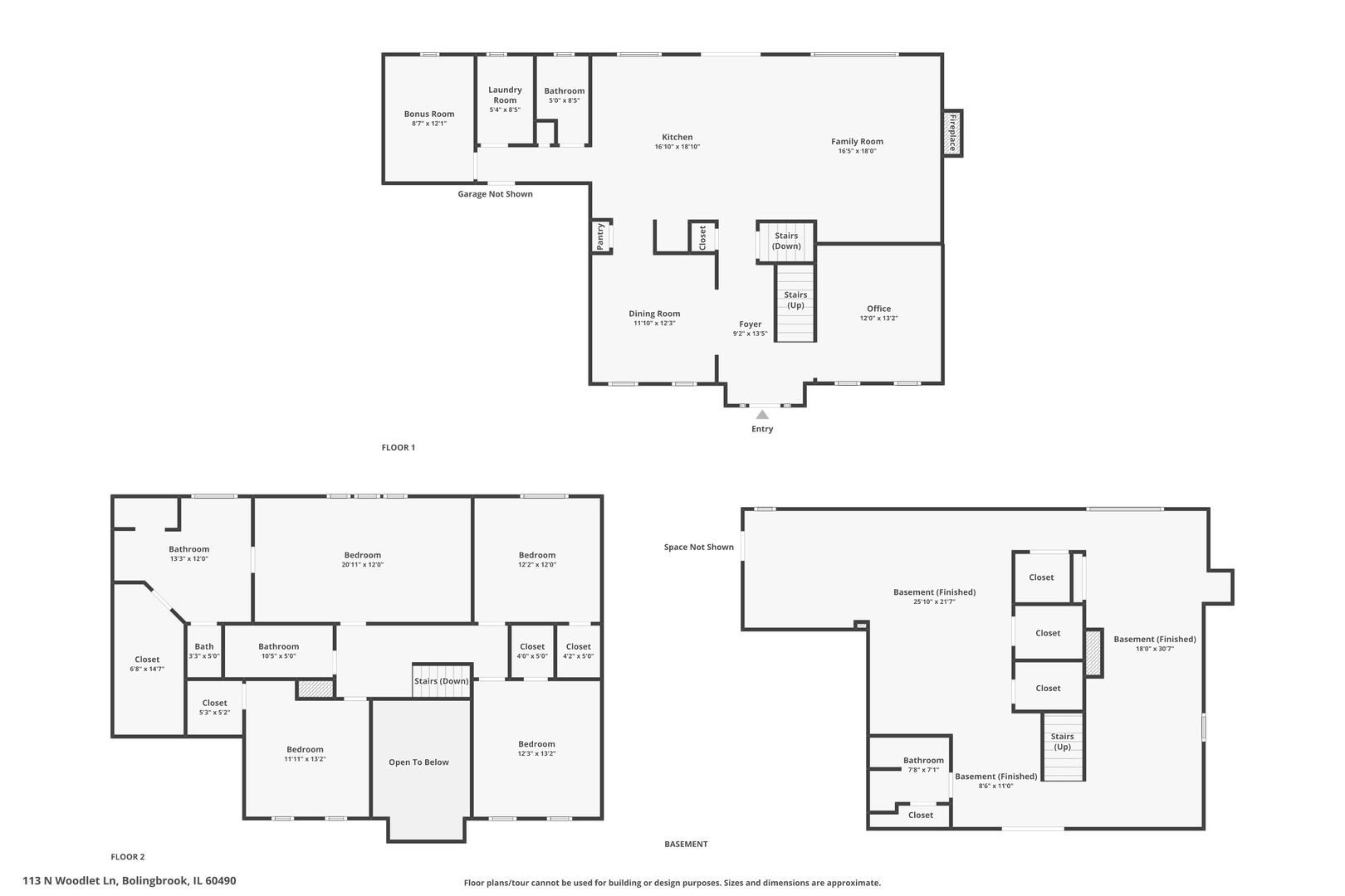
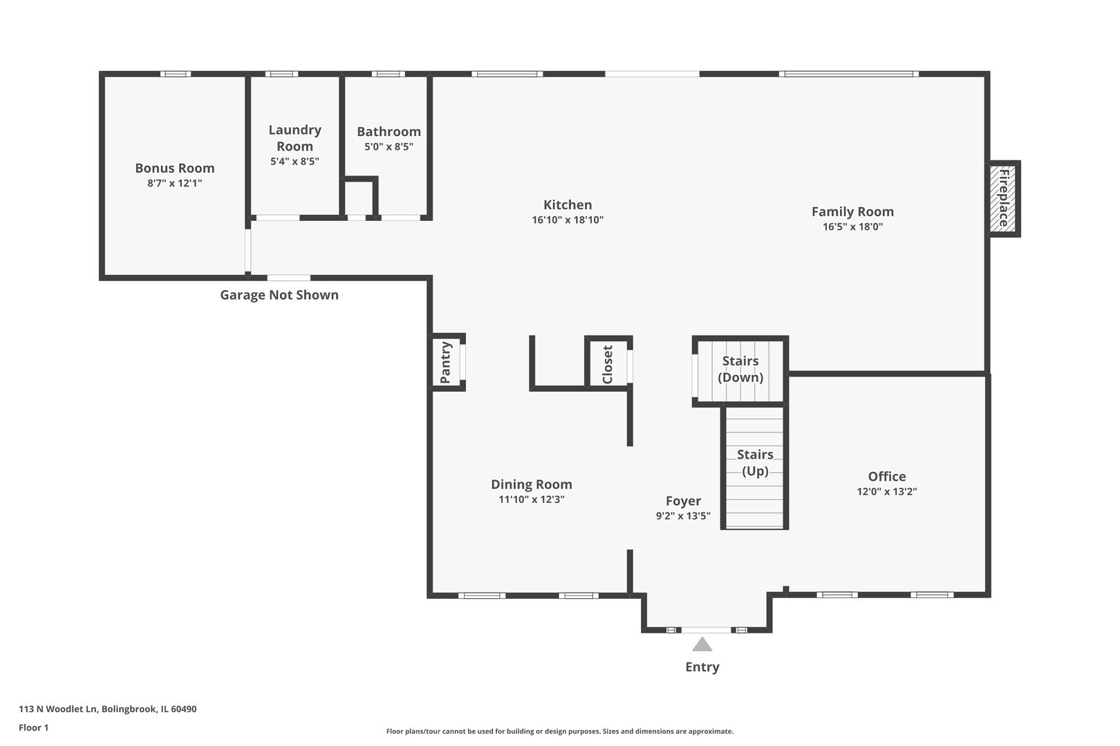
Welcome to this sophisticated home located in the highly sought-after District 204, served by award-winning Neuqua Valley High School. Nestled in a quiet, welcoming neighborhood. This home offers the perfect blend of style, space, and convenience, with easy access to shopping, dining, major interstates, and top-rated schools. HVAC 2019, roof 2018, windows 2017, siding 2021, appliances 2024. Inside, you’ll find spacious interiors designed for both everyday living and entertaining, featuring a thoughtful two-story layout with over 2,500 square feet including 4 bedrooms, 3.5 baths plus an extra fex room Hardwood floors through out the entire main floor, stairs and entire 2nd floor. The classic brick exterior provides timeless curb appeal, while the generous 0.21-acre lot offers plenty of room for outdoor enjoyment, newer deck, stamped contrete patio with brick fireplace. Additional highlights include 2 car garage, a cozy fireplace, and a full finished basement with 1,138 square feet of extra living space. Located in one of Bolingbrook most desirable locations.
- Principal and Interest
- Property Tax
- HOA fee
- Private Mortgage Insurance















































































