Overview
- 315649
- Property ID
- Updated On:
- April 19, 2026
- Independent Homes
- Category
- 7
- Bedrooms
- 5
- Bathrooms
- 6,024 ft2
- Property Size
- 10 ft2
- Property Lot Size
Description
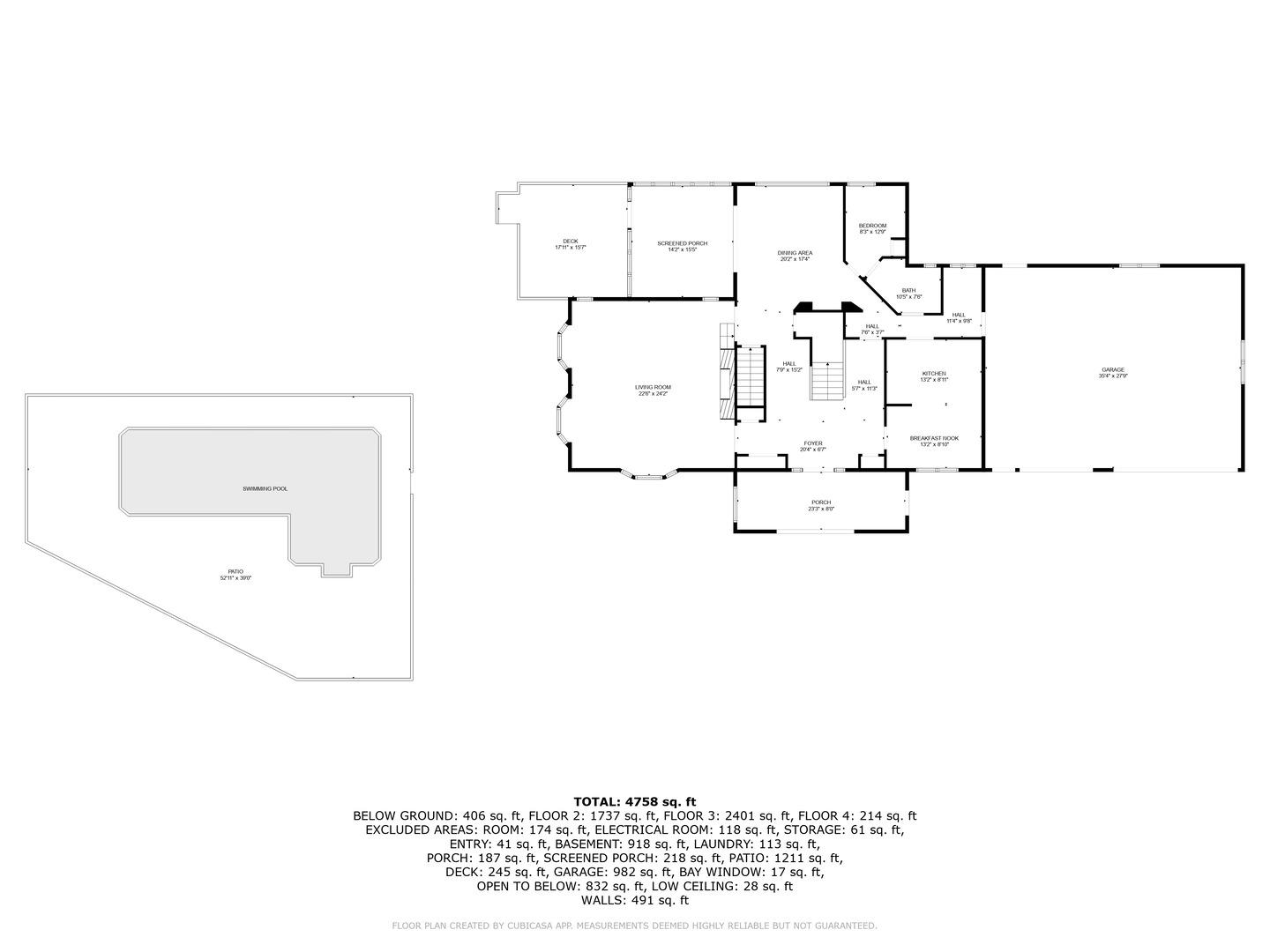
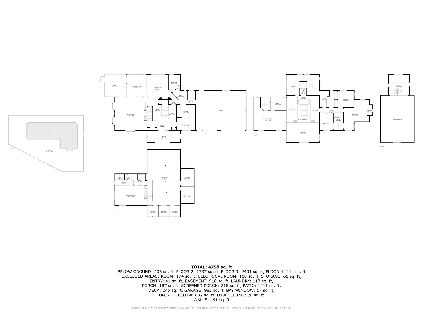
Sprawling homestead just outside of town with all the perks of being in the county but one minute from town. This stunner is a two-story brick and stone home with a full finished walkout basement that leads to patio and deck area with L-shaped double in ground pool. The eye-catching two-story entryway with grand oak staircase welcomes you into the home. Large living room with built in bookshelves and woodburning fireplace has views of the park like yard and pool area. There is an eat in kitchen plus formal dining room that opens to the screened porch. The main Floor also has a bedroom and full bathroom. 2nd floor of this home features a library and 6 additional bedrooms with 4 full bathrooms. The primary bedroom is off of the library and features a full bath with double sinks and walk in closet plus views of the pool. The custom oak spiral staircase takes you to the loft area that looks out to the back of the property. This unique property has so much to offer including 30×60 outbuilding and located on 10 acres with a pond. Survey has been completed on this property. SELLER FINANCING AVAILABLE–CALL LISTING AGENT FOR DETAILS!
- Principal and Interest
- Property Tax
- HOA fee
- Private Mortgage Insurance





















































































