Overview
Description
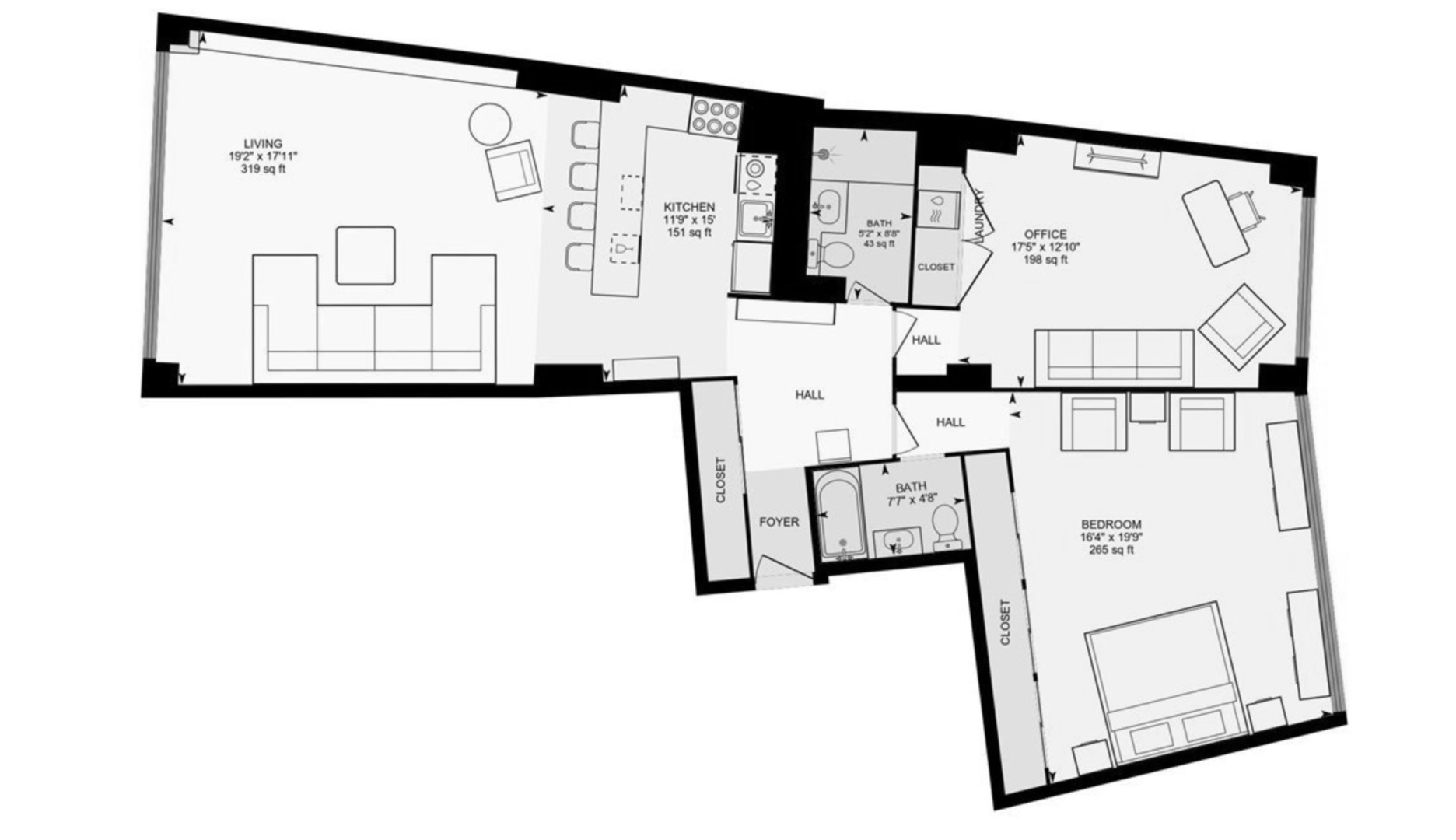
This home spans the full breadth of the building. A beautifully updated two-bedroom, two-bathroom end unit offers remarkable natural light, with glowing sunrise views over the lake to the east and sunset vistas across the city skyline to the west. For this reason, the A tier is rarely available in this building. The home reflects a modern, thoughtfully refined approach to design, anchored by a newly renovated open-concept kitchen with a striking waterfall island and high-end Thermador built-in appliances. Expansive living and dining spaces are framed by gorgeous Lake Michigan views as far as the eye can see. The sellers commissioned a custom Italian-built-in entertainment system in the living room. The spacious primary suite offers a generous layout and ample closet space, and a refreshed en-suite bathroom with a soaking tub. The second bedroom easily accommodates guests or serves as a beautifully appointed home office. The guest bedroom closet includes the Electrolux in-unit washer and dryer and updated electrical panel. Additional updates include refreshed bathrooms with new fixtures, vanities, etc.; new in-ceiling lighting with dimmers; new Friedrich in-wall AC units; and a new water filtration system. The entire home has been freshly painted. If the stunning wallpaper is not your cup of tea, it is easily removable. The canvas poster in the bedroom is also easily removable, though the sellers are willing to sell it to a buyer who appreciates its beauty. All-inclusive monthly assessments cover heat, AC, electricity, gas, water, trash, recycling, internet, and cable. Full-service amenities include 24-hour door staff, a package receiving room (with dry cleaning services), on-site management, on-site maintenance staff, a fitness center, bike storage, and a spectacular rooftop deck where lake breezes and skyline views take center stage. Pet-friendly with valet parking available 24/7 for rent. Just steps to the lakefront, Oak Street Beach, Lincoln Park, and the iconic shopping and dining of the Gold Coast-this is city living at its finest. Contact the listing agent for a full list of the condominium association’s recently completed capital improvement projects. The building is in great shape with a healthy reserve fund.
- Principal and Interest
- Property Tax
- HOA fee
- Private Mortgage Insurance






































