Overview
- 525697
- Property ID
- Updated On:
- April 29, 2026
- Independent Homes
- Category
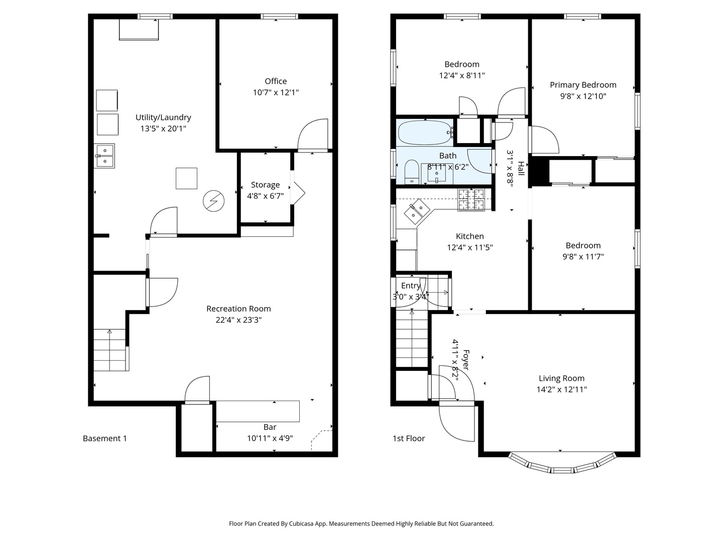
- 3
- Bedrooms
- 1
- Bathrooms
- 976 ft2
- Property Size
Description
This beautifully maintained one-story ranch offers the perfect blend of comfort, space, and peace of mind. The main level features three spacious bedrooms, while the fully finished basement provides flex room- great bonus room, home office, workout space. Major updates have already been taken care of, including a brand new roof, HVAC system (2022), hot water heater (2021), and the majority of windows replaced-providing confidence and long-term value for the next owners. Easy access to Interstate 294 and I-57, plus shopping, dining, and parks just minutes away.
- Principal and Interest
- Property Tax
- HOA fee
- Private Mortgage Insurance



























