Overview
Description
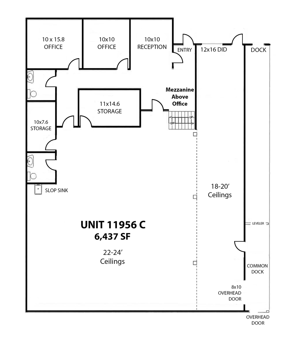
Contiguous Industrial Condo Units | For Sale or Lease Four (4) industrial condo units available in Huntley Gateway Commons. Units are contiguous and can be combined, totaling 20,384 SF, offering flexibility for a wide range of SF available. 11956 Unit C: 6,437 SF= $722,500 or $12 PSF NNN* Other units available. (F) MLS 12617720 (I) MLS 12617736 (J) MLS 12617753
Climate Control
Air Conditioning
Other Features
All Utilities
Office Only
Service - 201 to 600 Amps
$3,704.40
per month
- Principal and Interest
- Property Tax
- HOA fee
- Private Mortgage Insurance
$ 2,801.28
Similar Listings
For Sale
352 S HAMLIN Boulevard, Chicago, IL
$499,900
Historic Graystone 6-Unit in Garfield Park - Investment Opportunity Welcome to 351 S Hamli ...
For Rent
610 S Central Park Avenue, Chicago, IL
Vanilla box waiting to be customized for next tenant. Commercial kitchen hood in place. Ne ...












