Overview
- 47281
- Property ID
- Updated On:
- March 30, 2026
- Independent Homes
- Category
- 3
- Bedrooms
- 2
- Bathrooms
- 1,820 ft2
- Property Size
- 0 ft2
- Property Lot Size
Description
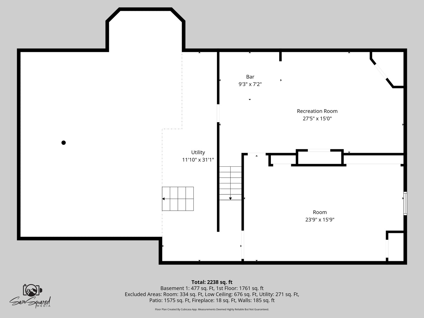
Easy living in Manteno! This beautifully maintained brick ranch sits on a landscaped corner lot with a fenced yard, sparkling in ground pool with new liner (2023) and heater (2024), and a stunning 2023 pergola perfect for outdoor entertaining. Inside, the open concept layout flows from the back patio into a granite styled kitchen featuring newer appliances-stove (2025), dishwasher and refrigerator (2024)-and new sliding doors with internal blinds (2024). The spacious living room showcases a vaulted ceiling and cozy fireplace, while the primary suite offers a walk in closet, tray ceiling, whirlpool tub, shower, and dual sinks. Two additional generously sized bedrooms include one with direct bath access. A large laundry area with built in storage leads to the attached garage or down to the partial basement, complete with an 8′ bar, mini fridge, and an unfinished room ready to convert into a bedroom. An extra deep crawl space adds abundant storage. New water heater by Nivian on-demand included and roof (2024) making this home truly move in ready. Everything is in working order and maintained!
- Principal and Interest
- Property Tax
- HOA fee
- Private Mortgage Insurance










































