Overview
- 249739
- Property ID
- Updated On:
- April 15, 2026
- Independent Homes
- Category
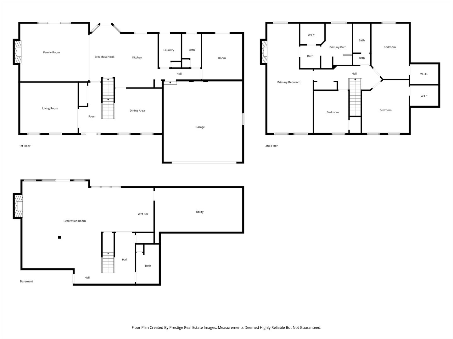
- 5
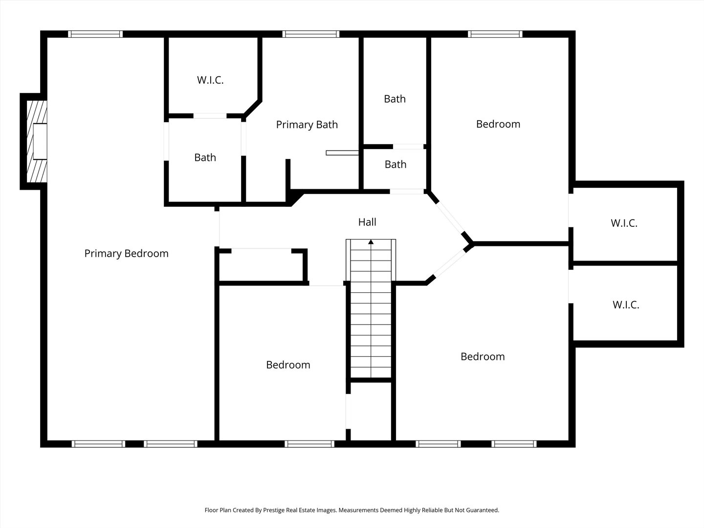
- Bedrooms
- 4
- Bathrooms
- 4,305 ft2
- Property Size
- 0 ft2
- Property Lot Size
Description
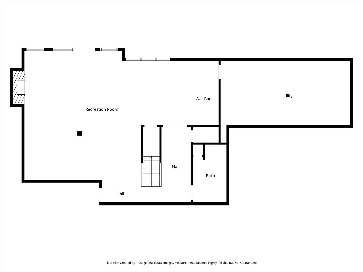
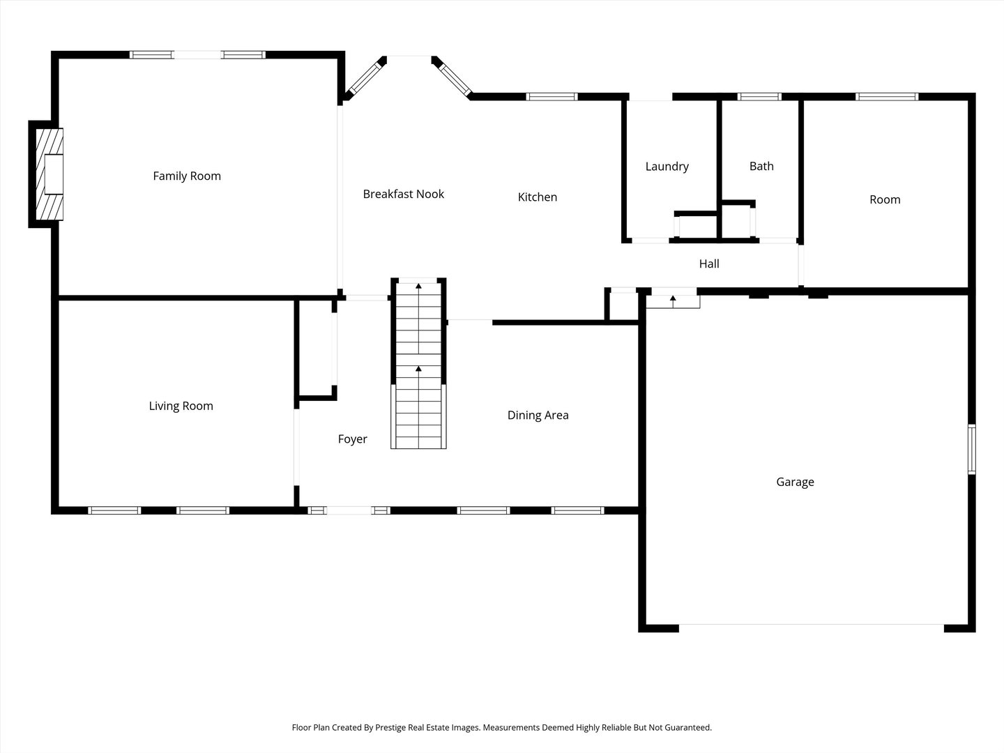
Welcome home to your own private sanctuary-an inviting, cabin-inspired retreat nestled on a beautifully wooded 20,000 sq ft lot in the prestigious Durwood Forest subdivision. Tucked away on a quiet cul-de-sac and served by highly regarded Bartlett High School, this custom-built Keim home blends comfort, character, and space for both everyday living and entertaining. Inside, 9-foot ceilings and a thoughtfully designed layout create an open, airy feel. The spacious kitchen flows seamlessly into the family room, while formal living and dining areas offer additional space for gatherings. The walkout basement is filled with natural light from a dramatic wall of windows and features a fireplace, wet bar, full bath, and generous storage-perfect for hosting or relaxing. Step outside to a peaceful, tree-lined backyard designed for privacy and enjoyment. A patio with a tranquil fountain sits beneath an impressive 40-foot deck, while a full-length main-level deck provides the perfect spot for morning coffee or outdoor dining. The main level also includes a versatile den or office with a vaulted ceiling, easily convertible into a bedroom. The kitchen is appointed with custom wood cabinetry, quartz countertops, and a breakfast bar. Throughout the home, you’ll find three gas fireplaces with ceramic logs, adding warmth and charm. The primary suite offers a true retreat, complete with a vaulted ceiling, sitting area, walk-in closet, dressing vanity, and a spa-like bath with a whirlpool tub and separate shower. Both full bathrooms feature vaulted ceilings and skylights, and all bedrooms include walk-in closets. Additional highlights include dual HVAC systems and two water heaters for added comfort and efficiency. With its unique setting and timeless design, this exceptional home is ready for your personal touch.
- Principal and Interest
- Property Tax
- HOA fee
- Private Mortgage Insurance








































