Overview
Description
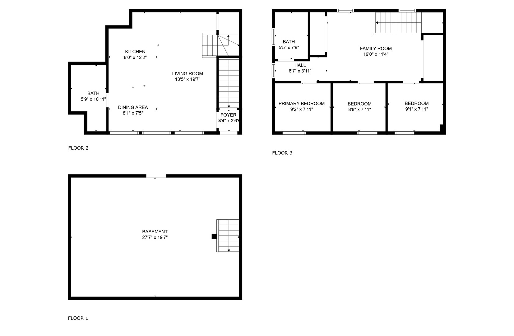
Welcome to this updated 3-bed, 2-bath apartment nestled in the heart of West Town. Boasting recently updated kitchen and bathrooms, this apartment offers modern elegance and convenience. Enjoy the added luxury of in-unit laundry and a spacious bonus basement area, providing ample room for storage or additional living space. Experience the best of city living with this stylish and functional apartment. Landlord prefers 2-3 year lease** Please review floorplans, in particular bedroom sizes and configuration before showing. Entrance is in the alley, off Ashland
























