Overview
- 563079
- Property ID
- Updated On:
- April 28, 2026
- Independent Homes
- Category
- 3
- Bedrooms
- 2
- Bathrooms
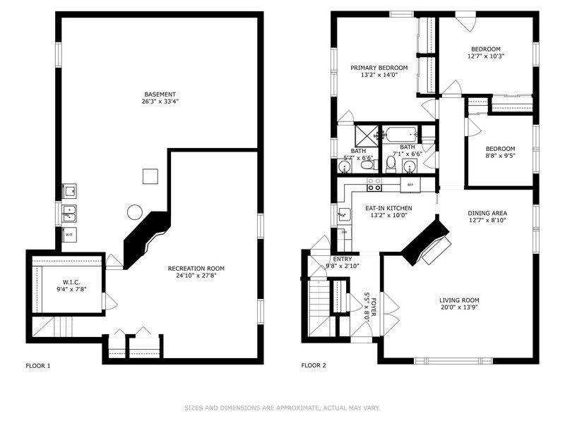
- 1,368 ft2
- Property Size
- 0 ft2
- Property Lot Size
Description
Located in the sought-after Field Grade School and Sandburg Middle School districts, this move-in ready ranch offers true walk-to-everything living-just steps to town, train, restaurants, shops, parks, and more-all on a quiet, family-friendly street. Set on a deep 165′ lot, this home features 2,610 sq ft of living space (1,369 sq ft on the main level) and an inviting front porch that welcomes you inside. The main level offers a bright living room with a stone wood-burning fireplace that flows seamlessly into the dining area. The updated white kitchen features custom cabinetry, quartz countertops, backsplash, and stainless steel appliances. The primary bedroom includes a private full bath, with two additional spacious bedrooms and a second full bathroom on the main level. The finished lower level provides excellent additional living space with a large family room featuring a second wood-burning fireplace, plus an oversized laundry and storage area with potential for a future office, playroom, or additional bedroom. Enjoy the outdoors with an entertainer’s deck, fully fenced yard, and a Tuscan-inspired pergola with vine-covered seating area. Shed offers great storage or playhouse potential. 2.5+ car garage. Recent updates include newer roof, kitchen, furnace, and bathrooms. Incredible in-town location with everything right outside your door.
- Principal and Interest
- Property Tax
- HOA fee
- Private Mortgage Insurance


























