Overview
- 159410
- Property ID
- Updated On:
- April 9, 2026
- Independent Homes
- Category
- 4
- Bedrooms
- 2
- Bathrooms
- 1,280 ft2
- Property Size
Description
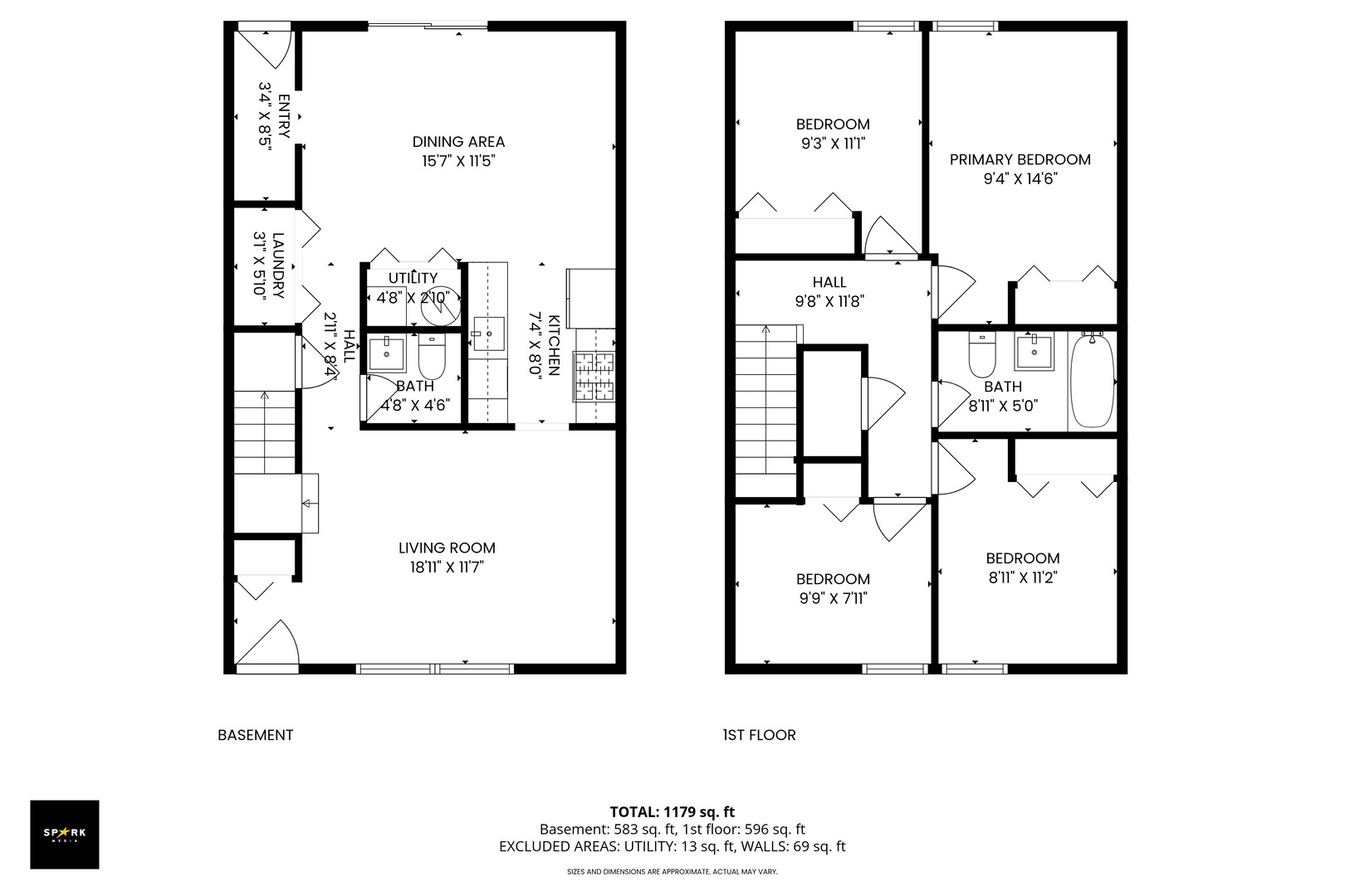
Beautifully remodeled duplex featuring 4 bedrooms and 1.5 bathrooms. The main level offers a spacious living room and a separate dining area, perfect for everyday living and entertaining. The kitchen is thoughtfully updated with custom cabinetry, quartz countertops, and stainless steel appliances. Luxury wood laminate flooring adds a modern touch throughout the main level. Upstairs, you’ll find four generously sized bedrooms and a full bath, along with new carpeting throughout the second level. The home also includes a convenient in-unit laundry room. Recent updates include new electrical and plumbing, along with new doors and trim-providing added peace of mind. Enjoy outdoor living in the fenced yard, ideal for relaxing or entertaining. Located close to schools, parks, shopping, and expressways, this move-in ready home offers both comfort and convenience.
- Principal and Interest
- Property Tax
- HOA fee
- Private Mortgage Insurance
























