Overview
- 275660
- Property ID
- Updated On:
- April 18, 2026
- Independent Homes
- Category
- 2
- Bedrooms
- 2
- Bathrooms
- 1,250 ft2
- Property Size
Description
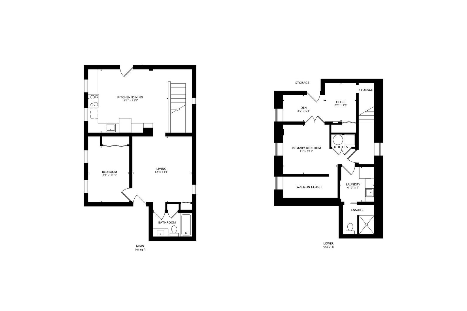
Tired of cookie-cutter condos? This welcoming 2 bed, 2 bath duplex down at 1232 W Nelson Street Unit B offers something more distinctive, set on one of Lakeview’s most sought-after streets. The main level has 10′ ceilings, a spacious updated gourmet kitchen with newer appliances, hardwood floors, a comfortable living room, a remodeled full bath, and nicely sized second bedroom. Downstairs, the Primary Suite lives like its own private retreat, with an ensuite bath, a large walk-in closet, laundry, updated luxury vinyl plank flooring, and a versatile bonus room, perfect for a home office or workout space. Generous storage throughout the unit. Beautifully maintained with many thoughtful updates including a 2022 renovation of the first floor bathroom, new kitchen appliances and washer/dryer in 2023, plus new central A/C in 2024. Situated on an extra-wide lot, the fenced in yard is tastefully landscaped and shared among the owners – perfect for relaxing, entertaining, grilling and gardening. Pet friendly. Easy street parking. Short walk to Brown and Red lines, Southport Corridor shops, Wrigley Field, and all the bars and restaurants that vibrant Lakeview has to offer!
- Principal and Interest
- Property Tax
- HOA fee
- Private Mortgage Insurance

























