Overview
- 489378
- Property ID
- Updated On:
- April 25, 2026
- Independent Homes
- Category
- 3
- Bedrooms
- 2
- Bathrooms
- 1,288 ft2
- Property Size
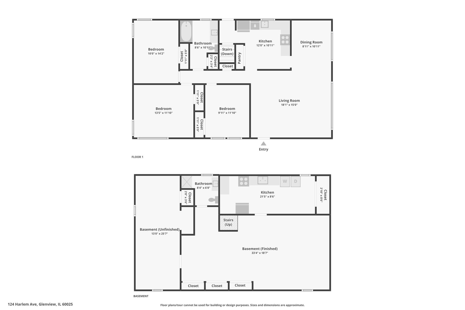
Description
Charming all-brick 3-bedroom, 2-bath ranch in the heart of Glenview! This well-maintained home features beautiful hardwood floors, abundant natural light from large windows, and ample storage throughout. A standout feature of this home is the finished basement, offering a private in-law suite complete with its own full bathroom and second kitchen-perfect for extended family, guests, or flexible living arrangements. The lower level also includes a spacious storage room with a built-in workbench, ideal for hobbies, projects, or organization. Outside, enjoy a lovely backyard and a two-car detached garage. Conveniently located within highly rated District 34 schools, this home combines comfort, versatility, and an unbeatable location
- Principal and Interest
- Property Tax
- HOA fee
- Private Mortgage Insurance
























