Overview
- 95572
- Property ID
- Updated On:
- April 3, 2026
- Independent Homes
- Category
- 3
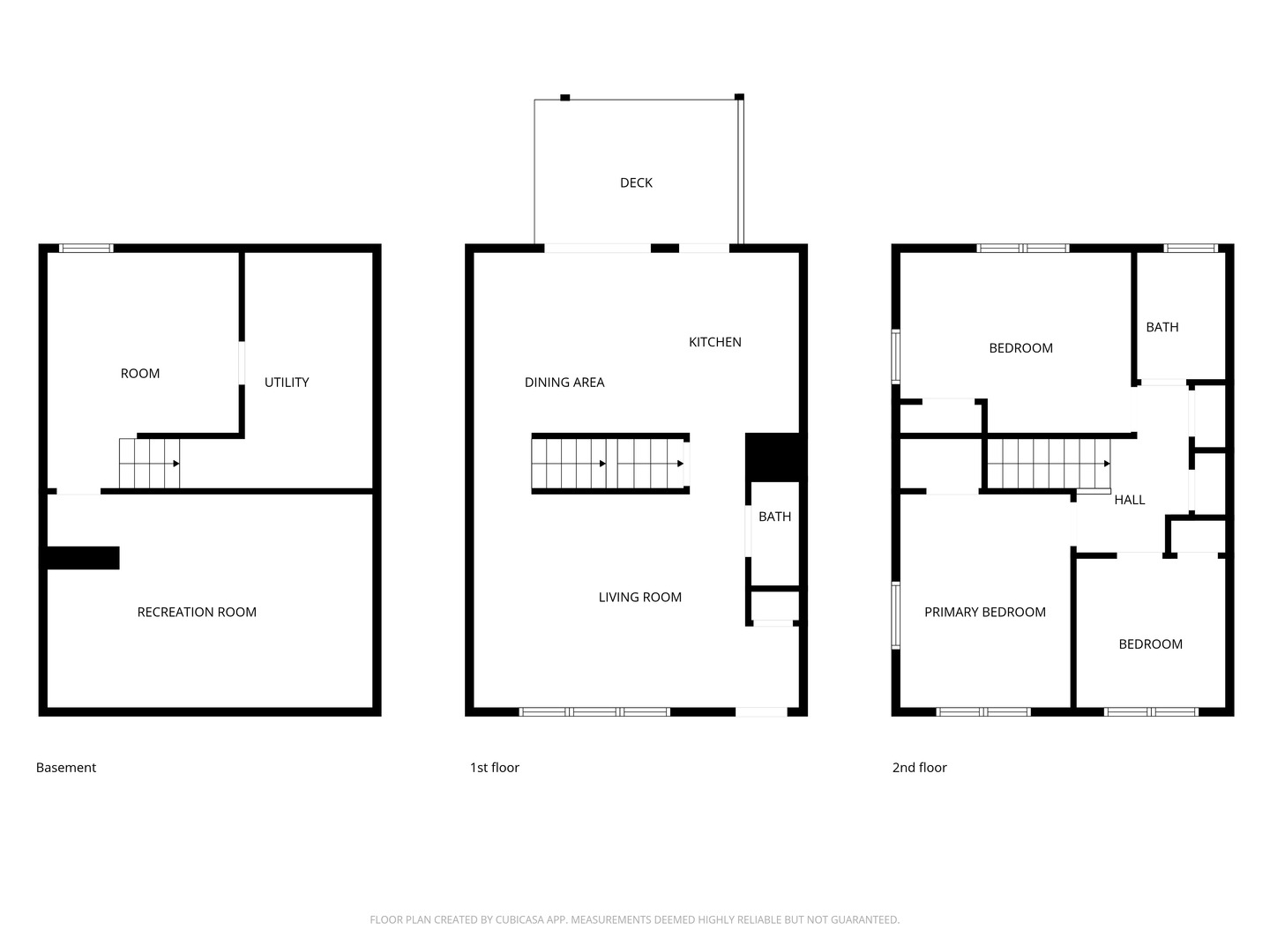
- Bedrooms
- 2
- Bathrooms
- 1,300 ft2
- Property Size
Description
Nothing to do but move in and enjoy. Freshly painted, wonderful 3 bedroom with lots of updates. Dishwasher, Water Heater, Ac 2023. Furnace 2021, New Floors throughout 2023/2026. Foundation 2024. End unit with private backyard, full finished basement with Family/Rec room. Ready for new owners.
Bathrooms
2
3
Climate Control
Air Conditioning
Heating
Floor Area
1,000-2,000 sqft
Garden
Yes
Other Features
Brick
Cats OK
Central Air
Circuit Breakers
Concrete
Dishwasher
Dogs OK
Dryer
Forced Air
Lake Michigan
Microwave
Natural Gas
Owned
Patio
Public Sewer
Range
Refrigerator
Washer
$1,880.19
per month
- Principal and Interest
- Property Tax
- HOA fee
- Private Mortgage Insurance
$ 1,240.32
Similar Listings
Featured
For Sale
511 MAIN Avenue, Clinton, IA
$72,000
Beds:
2Baths:
1Size:
945 ft2
This is such a cute home and is move in ready. New AC and 220 for AC in July 2025. New roo ...
Featured
For Sale
1312 Nicki Drive, Bloomington, IL
$248,000
Beds:
3Baths:
2Size:
1,472 ft2
Welcome to this beautifully updated single-family ranch home offering comfort, style, and ...






























