Overview
- 190773
- Property ID
- Updated On:
- April 12, 2026
- Independent Homes
- Category
- 4
- Bedrooms
- 4
- Bathrooms
- 3,126 ft2
- Property Size
- 0 ft2
- Property Lot Size
Description
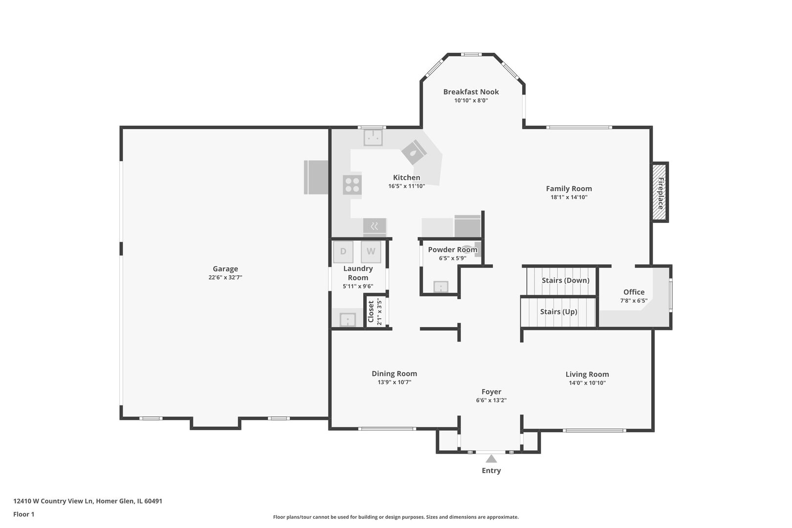
Beautiful Brick Two-Story in a Quiet, Hidden Country View Subdivision – Move-In Ready! Nestled in a private, tucked-away subdivision yet close to all amenities, this beautifully maintained brick two-story home offers the perfect blend of space, comfort, and convenience. This impressive home features 4-5 bedrooms and 3.5 baths, along with a full unfinished basement and a heated 3-car garage with a 240volt electric vehicle charging, providing plenty of room to grow. Major updates have already been completed, including a newer roof, gutters, soffits, garage door, furnace, air conditioning, and water heater, giving you peace of mind from day one. The main level offers a spacious kitchen with dinette, ideal for everyday living and entertaining, which opens to a large family room with a cozy fireplace-perfect for gatherings. Tucked just behind the stairwell is a private office, offering a quiet space for work or study. Upstairs, you’ll find generously sized bedrooms, including a comfortable primary suite, making this home ideal for larger households or those needing extra space. The full unfinished basement provides endless possibilities to create additional living space, a recreation area, or a home gym. Step outside to enjoy a large yard, perfect for outdoor entertaining, relaxing, or future landscaping ideas. This home has been well cared for and is truly move-in ready, all in a desirable location close to shopping, dining, schools, and transportation. Hurry this will not last!
- Principal and Interest
- Property Tax
- HOA fee
- Private Mortgage Insurance

















































































