Overview
- 257976
- Property ID
- Updated On:
- April 19, 2026
- Independent Homes
- Category
- 3
- Bedrooms
- 3
- Bathrooms
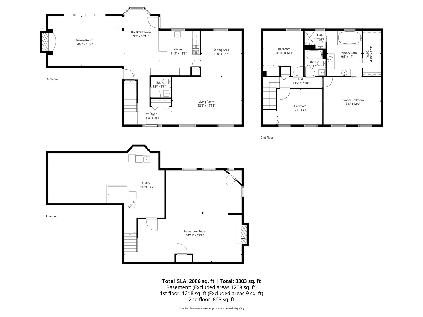
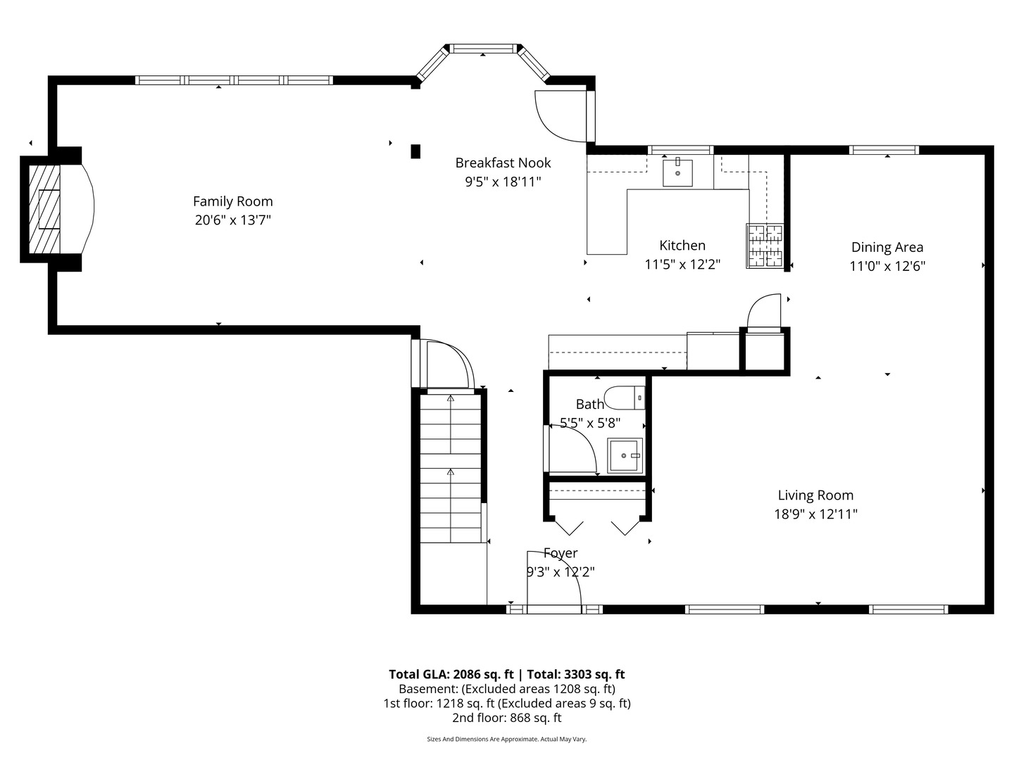
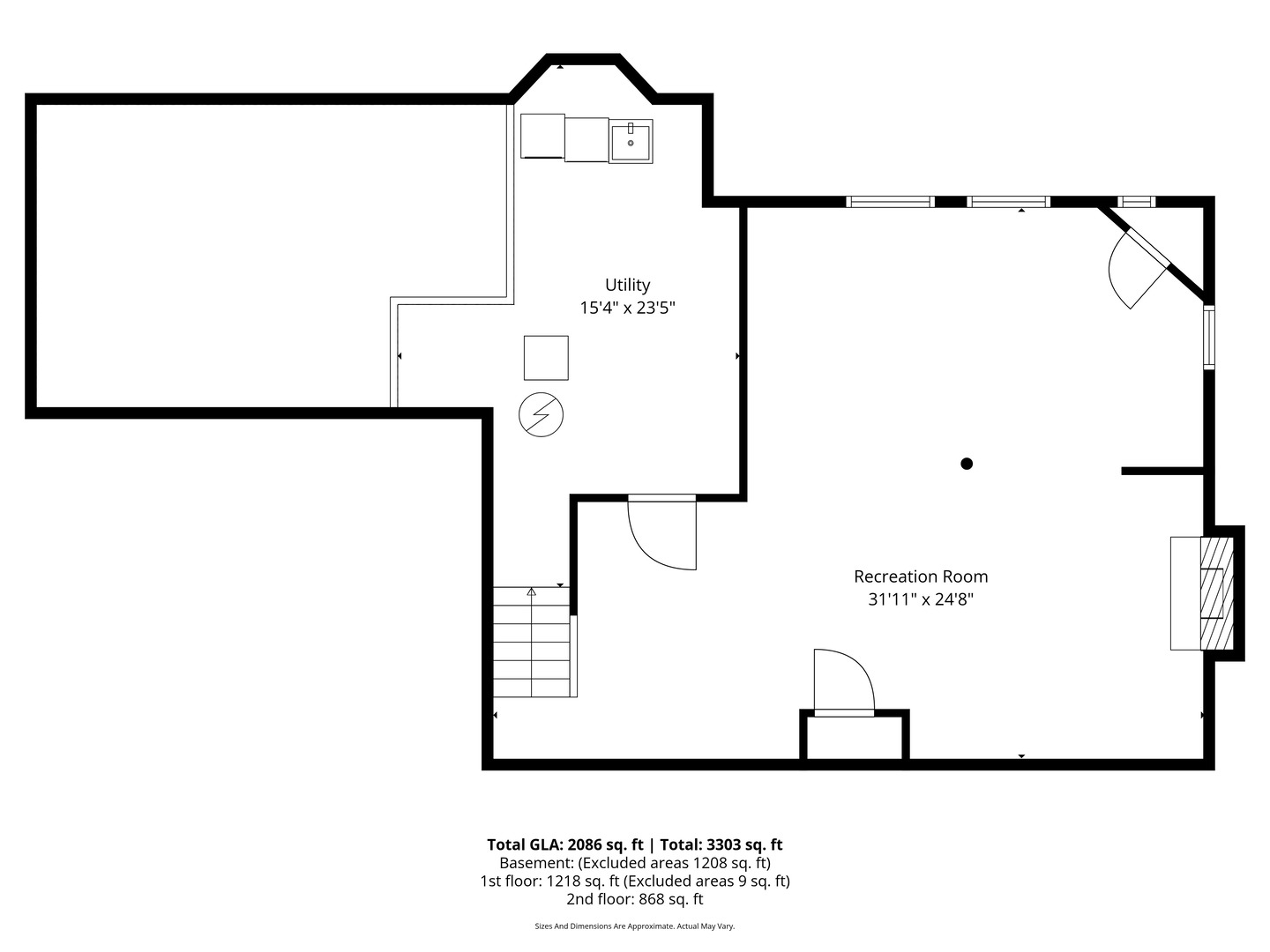
- 3,303 ft2
- Property Size
- 0 ft2
- Property Lot Size
Description
**Multiple offers received, highest and best offers due Monday 4/20 at 12pm. Seller response shortly thereafter. Stunning all-brick 2-story home nestled in the highly sought-after Kingston Hills subdivision of Homer Glen, IL. From the moment you arrive, a new custom front door sets the tone for the quality and care found throughout this beautifully updated home. Step inside to discover refinished hardwood floors, all-new paint, and new light fixtures throughout. The fully updated kitchen features new custom cabinetry and quartz countertops, making it the perfect space for everyday living and entertaining. New carpet in all upstairs bedrooms and an updated first-floor bathroom with new vanity, toilet, and paint complete the move-in-ready interior. Outside, your own resort-style backyard awaits. Enjoy summers in the in-ground saltwater pool, outfitted with all-new pool equipment including a sand filter, saltwater cell (2024), and new pool heater (2025). The new professional landscaping and sprinkler system keep the grounds lush and beautiful with minimal effort. Major mechanical updates give buyers true peace of mind: new furnace (2026), new hot water tank (2023), new washer and dryer with warranty (2026), new 6-inch gutters, a radon mitigation system, and new blinds throughout. This Homer Glen gem checks every box, highly-rated schools, a quiet subdivision setting, and years’ worth of high-end upgrades already done for you. Homes like this don’t last long.
- Principal and Interest
- Property Tax
- HOA fee
- Private Mortgage Insurance













































