Overview
- 168056
- Property ID
- Updated On:
- April 10, 2026
- Independent Homes
- Category
- 4
- Bedrooms
- 5
- Bathrooms
- 3,478 ft2
- Property Size
- 0 ft2
- Property Lot Size
Description
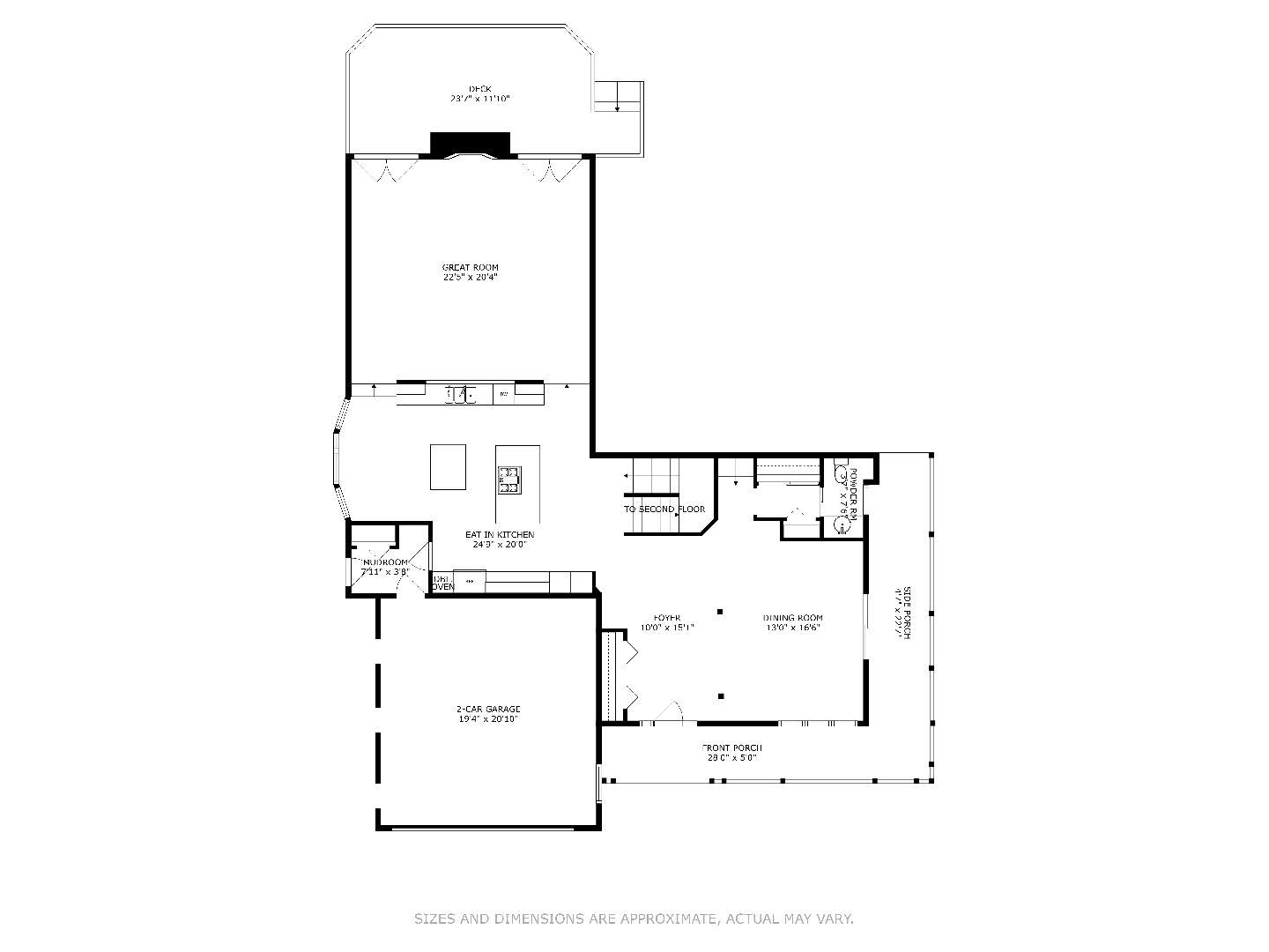
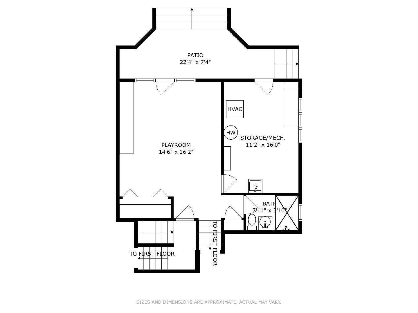
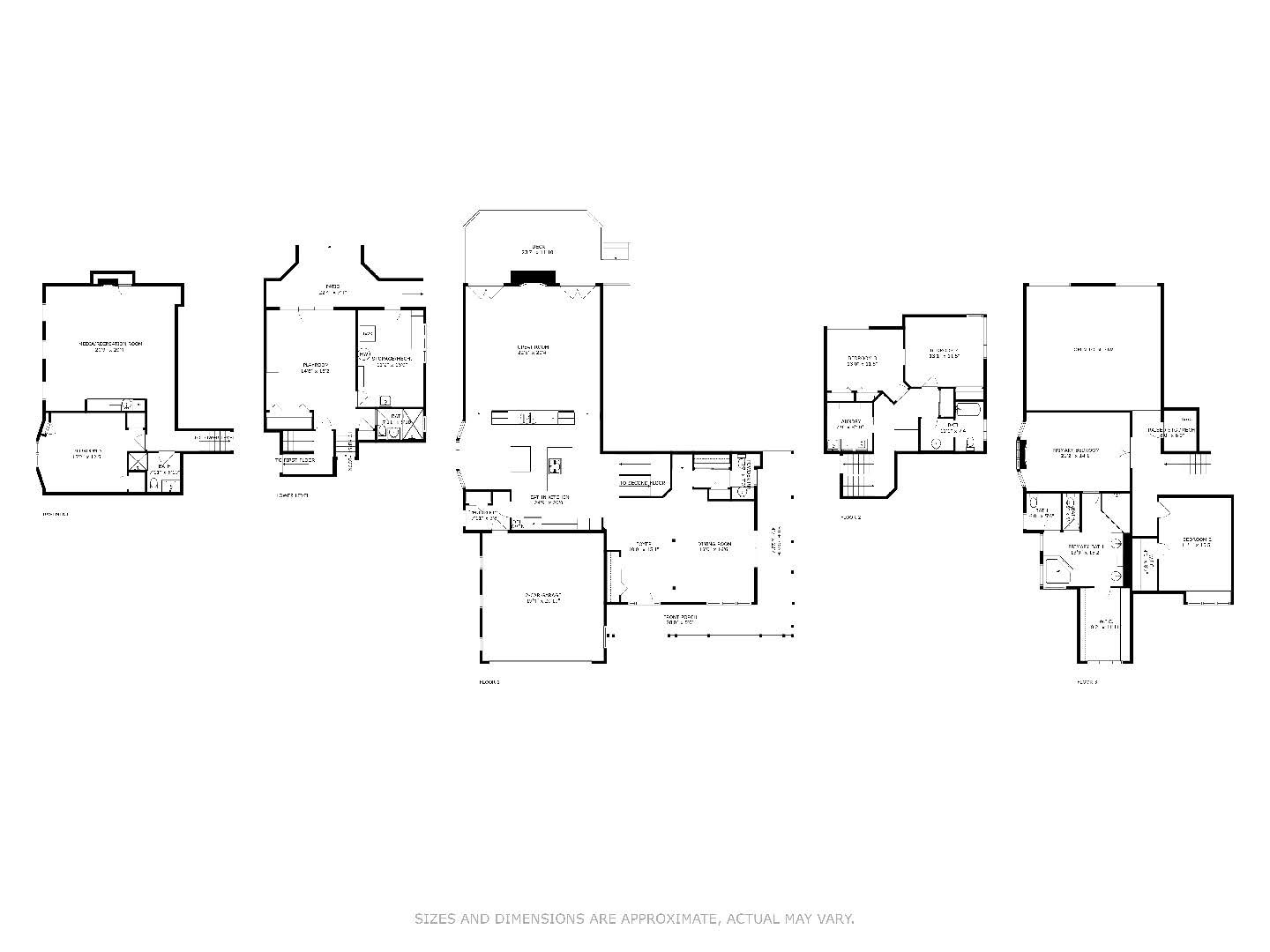
Welcome to this beautifully expanded and thoughtfully updated split-level home, ideally situated on a tranquil lot in sought-after Northeast Deerfield. Custom designed and fully renovated in 2004, this home blends timeless character with modern comfort. The sun-filled main level features an open-concept layout, seamlessly connecting the living and dining areas to an oversized kitchen with granite countertops, double ovens, and two islands. The vaulted great room offers a warm, inviting space with picturesque views of the wooded backyard. The second level includes two spacious bedrooms, a full bath, and a large laundry room. The private primary suite occupies its own level, complete with a fireplace, spa-like bath, and generous walk-in closet. The lower level provides flexible space for a family room, office, or playroom, while the finished basement is ideal for a media room or recreation space. Highlights include Brazilian cherry and oak hardwood floors, custom millwork, and three fireplaces throughout. Enjoy the serene backyard with lush landscaping and a deck designed for outdoor gatherings. Conveniently located near Walden Elementary School and neighborhood parks, this home offers exceptional comfort, style, and versatility.
- Principal and Interest
- Property Tax
- HOA fee
- Private Mortgage Insurance






























