Overview
- 340358
- Property ID
- Updated On:
- April 21, 2026
- Independent Homes
- Category
- 4
- Bedrooms
- 3
- Bathrooms
- 2,704 ft2
- Property Size
- 0 ft2
- Property Lot Size
Description
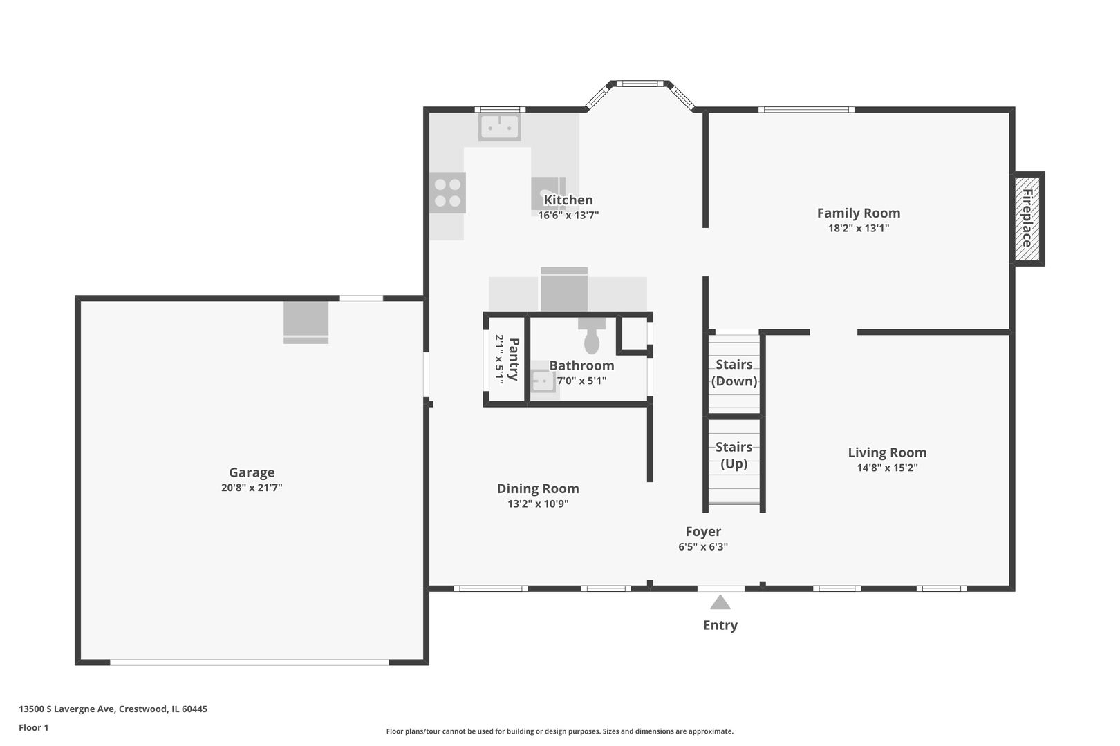
Spacious and well-maintained 4-bedroom, 2.5-bath home offering 2,704 square feet of comfortable living space! This two-story residence features a functional and inviting main level with a bright kitchen, cozy family room, formal living room, dining room, and convenient half bath-perfect for everyday living and entertaining. Upstairs, you’ll find a generous primary suite complete with a walk-in closet and private en-suite bathroom, along with three additional bedrooms and a full hall bath. The full unfinished basement provides excellent storage and endless potential for future living space, with laundry already in place. Enjoy the outdoors in the expansive backyard featuring a covered deck-ideal for relaxing or hosting gatherings. Additional highlights include a 2-car garage and a desirable layout with room to grow. Don’t miss this fantastic opportunity to own a spacious home in a great location!
- Principal and Interest
- Property Tax
- HOA fee
- Private Mortgage Insurance



























