Overview
- 191079
- Property ID
- Updated On:
- April 12, 2026
- Independent Homes
- Category
- 3
- Bedrooms
- 3
- Bathrooms
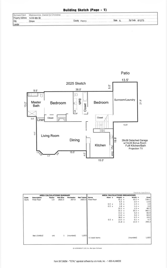
- 1,825 ft2
- Property Size
Description
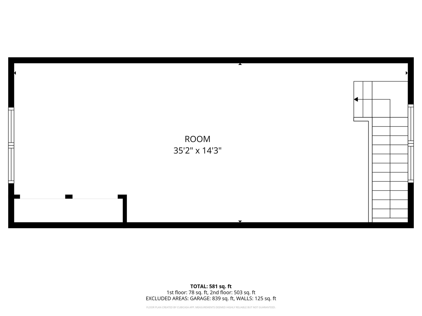
Welcome to this exceptional brick ranch in Orion, where timeless craftsmanship meets thoughtful modern updates. Impeccably maintained and move-in ready, this expansive home offers 4 bedrooms, 3 full bathrooms, and a truly remarkable 3-car garage with fully finished living quarters… it keeps going! All cabinets (in both kitchens) along with the vanities are all custom Amish cabinets. An abundance of natural light upon entry into the large living / dining area equipped with at wood burning fireplace giving ambiance and elegance. Primary bedroom located on main floor has its own full bathroom that has heated floors. Large sunroom with laundry capabilities was added where former 1 car garage was located. Built in 2002, the extraordinary 3-car garage is far more than storage-it’s an entertainer’s dream and an ideal guest retreat. This fully equipped space includes a complete kitchen, full bathroom, and a private upper-level bedroom with closet and storage space, plus its own heating and A/C system. Enjoy cinematic experiences at home with a projector and large screen, perfect for gatherings or extended stays for out-of-state guests. Seller has installed Pella windows, new A/C unit (and attic air handler) in April ’25, in ’23 LVP flooring in main floor kitchen and bedrooms along with custom window treatments throughout the house & garage, ’23 water heater, ’24 water softener, and sump pump new in ’25. Whole house has been re-wired and basement has been waterproofed. Roof , gutters, and front driveway updated in ’22. The seller has given excellent care over the years to this home so will offer over a whole house inspection done by National Property Inspectors to show.
- Principal and Interest
- Property Tax
- HOA fee
- Private Mortgage Insurance

















































