Overview
Description
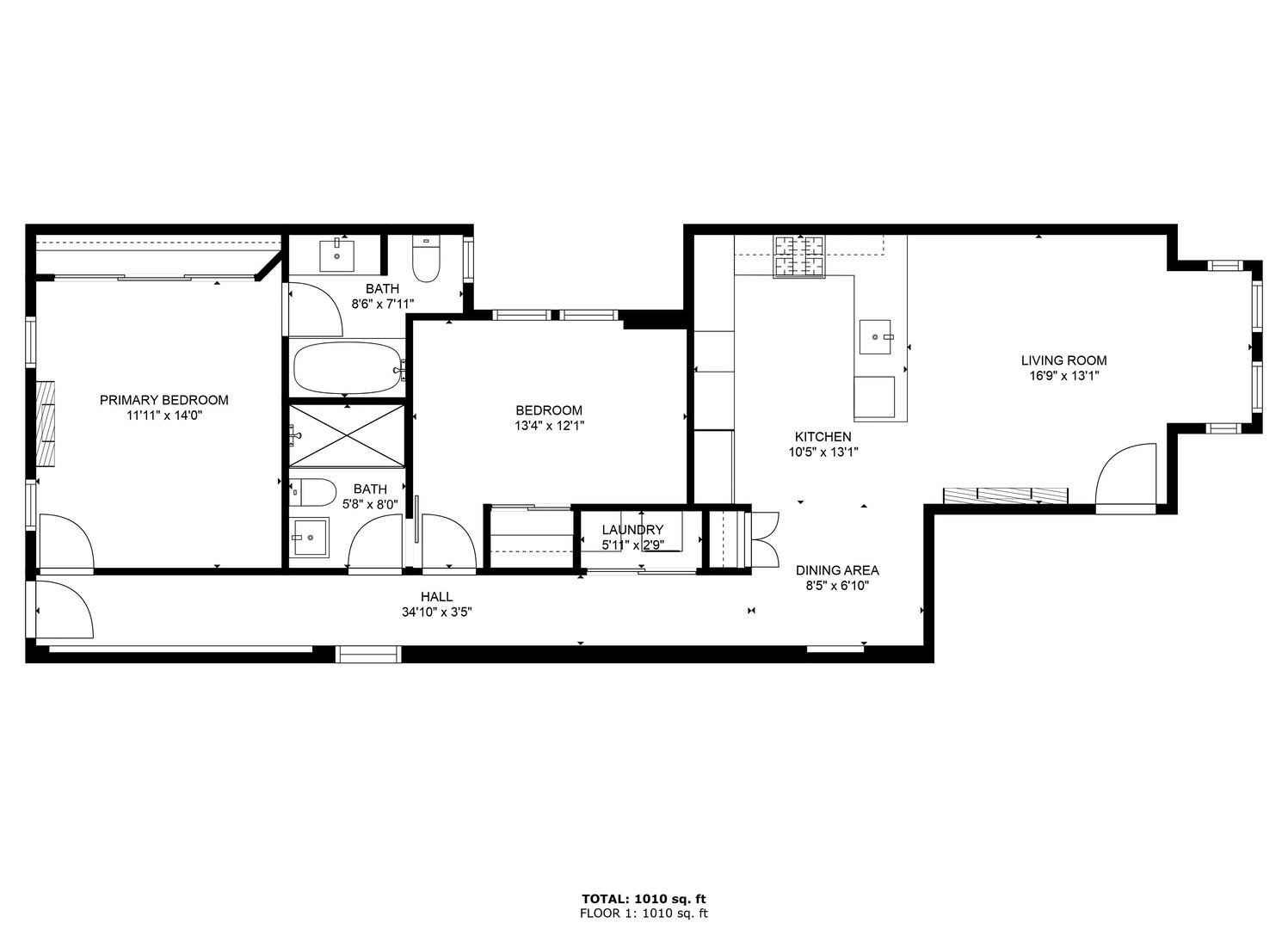
Beautiful historic brick 3 unit In Fulton Market’s HOT West Loop. This rare three-unit luxury rental structure is exactly in the path of new developments. No money was spared and fully rehabilitated in 2016. Three brand-new, identical apartments that have been completely remodeled with premium finishes and appliances. Sleek two-bedroom, two-bathroom apartments with the same layout. Kohler kitchen and bathroom fixtures, Bosch appliances, wine refrigerators, and quartz worktops. Each unit has lots of closet space, Hunter Douglas blinds, and wide plank wood floors. Each apartment has a quad screen security system, two fireplaces, an in-unit washing and dryer, high-efficiency water heaters, and large Trex decks with gas hookups. Like new historic brick structure with fiberglass insulation in the walls and ceiling, R11 quiet zone walls, new plumbing, electric, new roof, & more. 2 car garage. Roof is ready for a roof deck or whatever the next owner desires! Accessible to multiple CTA transportation lines & highways as well as all the restaurants, bars & shops the West Loop is famous for! Less than a block to three Michelin Starred Restaurants and others in the world class culinary Fulton Market District. Less than half a mile to the proposed United Center Entertainment Campus! Also, in the top-rated Skinner school district. The property’s location is further enhanced by surrounding major developments like the Fulton Park Campus, luxury condo towers at 1325 W Fulton, and residential towers at 1200 W Fulton, as well as steps from the up-and-coming luxury condo development The Fulton Bond, placing it in one of Chicago’s fastest-growing investment areas.
- Principal and Interest
- Property Tax
- HOA fee
- Private Mortgage Insurance




















