Overview
- 224307
- Property ID
- Updated On:
- April 19, 2026
- Independent Homes
- Category
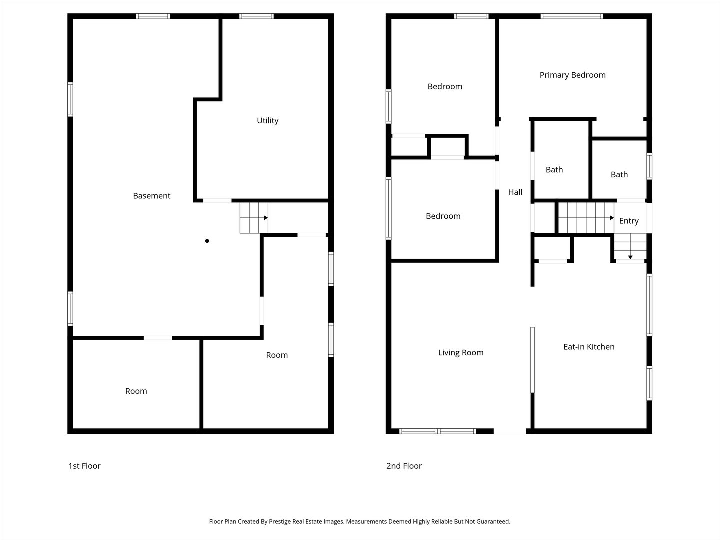
- 3
- Bedrooms
- 2
- Bathrooms
- 1,040 ft2
- Property Size
Description
Welcome to this beautifully maintained brick ranch offering comfortable living, modern updates, and plenty of space to enjoy. Step inside to find a bright and inviting interior with a functional layout that flows seamlessly through the living areas and bedrooms. The home was fully rehabbed in 2016, bringing updated finishes and improved systems throughout. The spacious basement includes a recreation room plus additional unfinished space, providing endless possibilities for a home gym, office, entertainment area, or extra storage. Major mechanical updates include a new roof, new HVAC system, new hot water tank, and new insulation, offering peace of mind for years to come. Outside, enjoy a convenient driveway and a detached two-car garage, along with a yard perfect for relaxing or entertaining. This solid brick home blends classic construction with modern upgrades and is ideally located near parks, schools, shopping, and transportation. Simply move in and start enjoying everything this home has to offer. Schedule your private tour today!
- Principal and Interest
- Property Tax
- HOA fee
- Private Mortgage Insurance






























