Overview
Description
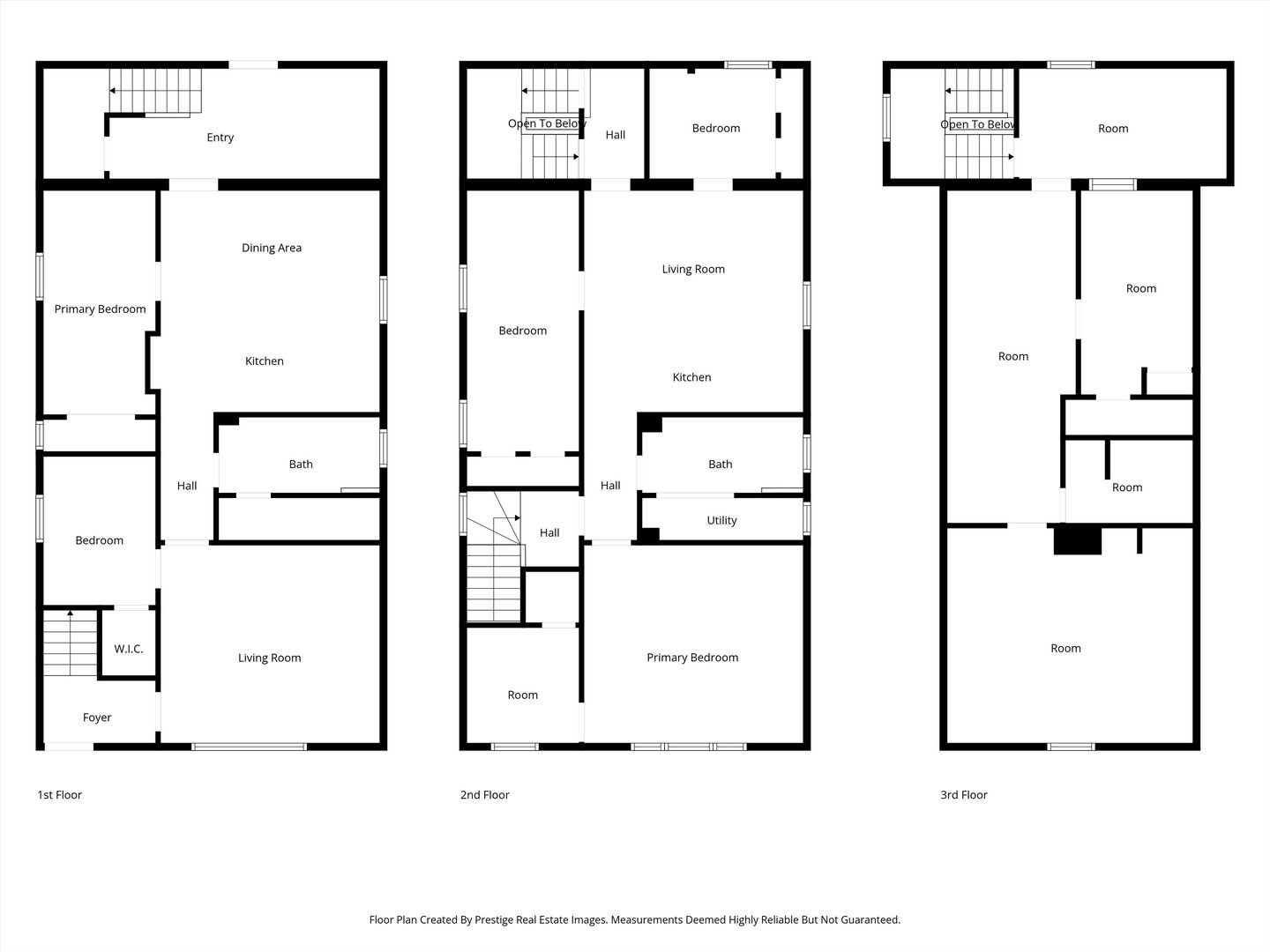
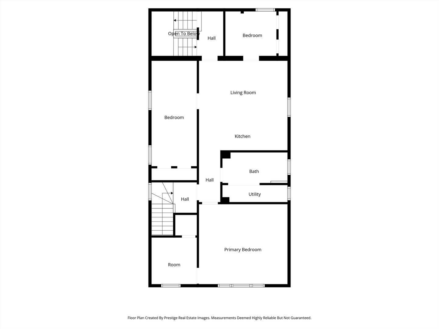
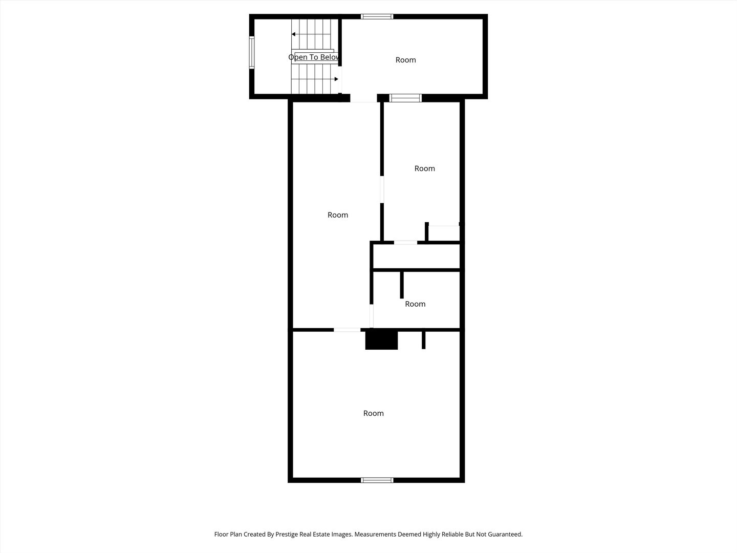
Incredible opportunity to own a solid brick 2-unit building at 1433 S Keeler in Chicago. This income-producing property features two spacious units, including a desirable duplex-up second unit that offers added living space, flexibility and the possibility of adding another bathroom. The building has been updated with clean, modern finishes including refreshed flooring, neutral paint tones, and bright, open living areas that appeal to both owner-occupants and investors alike. The property sits on an oversized lot with a large yard and offers excellent potential for strong rental income or multigenerational living. Conveniently located near parks, schools, public transportation, and major expressways, this is a great value-add or turnkey investment in a growing West Side location. Live in one unit and rent the other, or add a strong 2-flat to your portfolio.
- Principal and Interest
- Property Tax
- HOA fee
- Private Mortgage Insurance





































