Overview
- 41128
- Property ID
- Updated On:
- March 30, 2026
- Independent Homes
- Category
- 2
- Bedrooms
- 4
- Bathrooms
- 2,033 ft2
- Property Size
Description
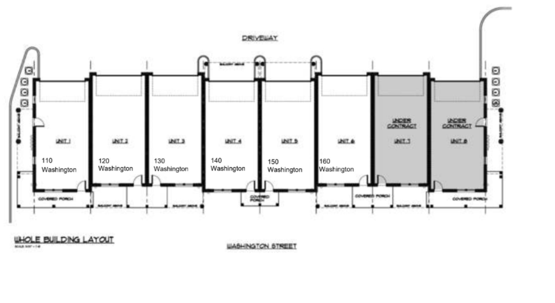
Beautiful, Brand new 8-unit townhouse building in the heart of the Village of Barrington. 2 bedroom, 3.1 bathroom unit has 3 levels all with 9′ ceilings: the main level has a bonus room, full bathroom and a 2-car garage. 2nd level open floor plan family room/dining area with fireplace and modern kitchen with Quartz countertops, Stainless steel appliances, oversized kitchen island, 42″ upper cabinets, soft close doors, tiled backsplash and under cabinet lighting and a Stainless steel kitchen sink. This level opens to a huge exterior deck. 3rd level has 2 bedrooms with walk-in closets, 2 full baths and a laundry area with washer/dryer. Beautiful hardwood floors throughout 2nd and 3rd levels. Pella windows and doors. Baths have tiled floors and shower walls with frameless glass doors. Quiet yet convenient location that’s only a few blocks to Metra Station and to downtown Barrington shopping and restaurants. Highly acclaimed district 220 Barrington schools. Building rendering, recent aerials and examples of the quality from builers past projects in photos, along with unit floor plans and building layout that shows all units. Contact co-listing agent, Peter Perisin, with all questions.
- Principal and Interest
- Property Tax
- HOA fee
- Private Mortgage Insurance





















