Overview
- 120081
- Property ID
- Updated On:
- April 2, 2026
- Independent Homes
- Category
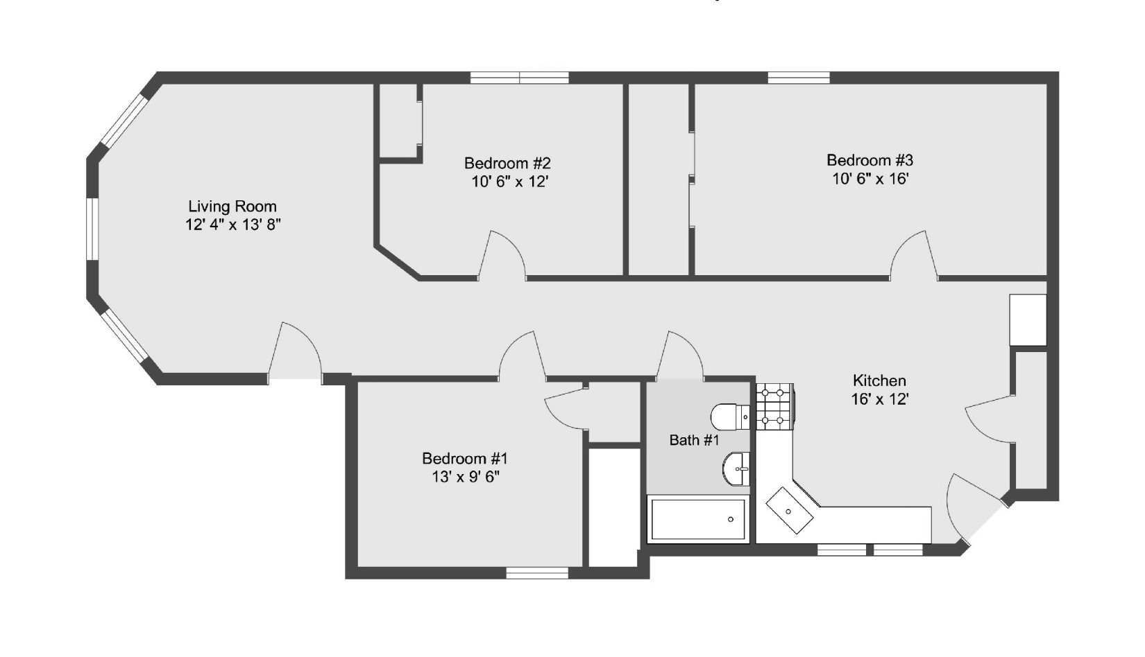
- 3
- Bedrooms
- 1
- Bathrooms
- 1,200 ft2
- Property Size
Description
Introducing a newly remodeled apartment in the vibrant heart of Wicker Park, just steps from Humboldt Park. This bright 3-bedroom, 1-bath home features modern finishes throughout, including stainless steel appliances with a DISHWASHER, sleek quartz countertops, and freshly painted walls. The spacious layout offers generously sized bedrooms and a welcoming living room with beautifully stained wood floors and triple windows that fill the space with natural light. Additional perks include ample STORAGE, window A/C units for summer comfort, a private rear BALCONY, and access to the on-site LAUNDRY room. Pets are welcome with a $350 annual fee. Move-in requirements include a $500 move-in fee, $500 move-out fee, and prepaid last month’s rent. Located in culturally rich Humboldt Park and near trendy Wicker Park, you’ll enjoy a neighborhood known for its art, dining, and green spaces, along with convenient public transit options, including the CTA Blue Line for quick access to downtown. Don’t miss this opportunity – schedule your showing today!
























