Overview
- 76018
- Property ID
- Updated On:
- April 1, 2026
- Independent Homes
- Category
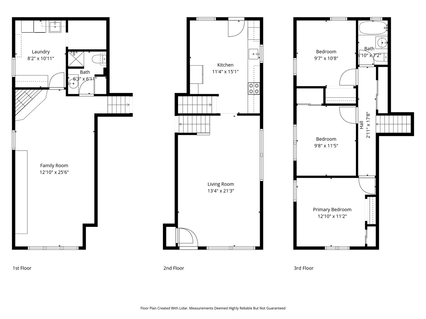
- 3
- Bedrooms
- 2
- Bathrooms
- 1,137 ft2
- Property Size
Description
Welcome to this charming and well-maintained suburban split-level home in the highly sought-after Oak Forest community, known for its top-rated school district and strong demand. This inviting home offers a functional layout, great natural light, and a spacious backyard ideal for entertaining or everyday enjoyment. Major updates provide peace of mind, including new dishwasher and refrigerator (2021), washer, dryer, and laundry sink (2022), and a new furnace (2021). The home also features solar panels installed in 2021, offering energy efficiency and long-term savings, with the existing plan to be assumed by the buyer. Additional value includes updated electrical panels and circuit boxes, both indoor and outdoor, completed during the solar installation. Outdoor improvements include a new cement patio and new grass installed in 2022, enhancing the home’s curb appeal and outdoor living space. Conveniently located just 35 minutes from downtown Chicago and approximately 10 minutes from the highway, this home delivers the perfect balance of suburban comfort and city access.
- Principal and Interest
- Property Tax
- HOA fee
- Private Mortgage Insurance




























