Overview
- 392511
- Property ID
- Updated On:
- April 24, 2026
- Independent Homes
- Category
- 5
- Bedrooms
- 6
- Bathrooms
- 5,049 ft2
- Property Size
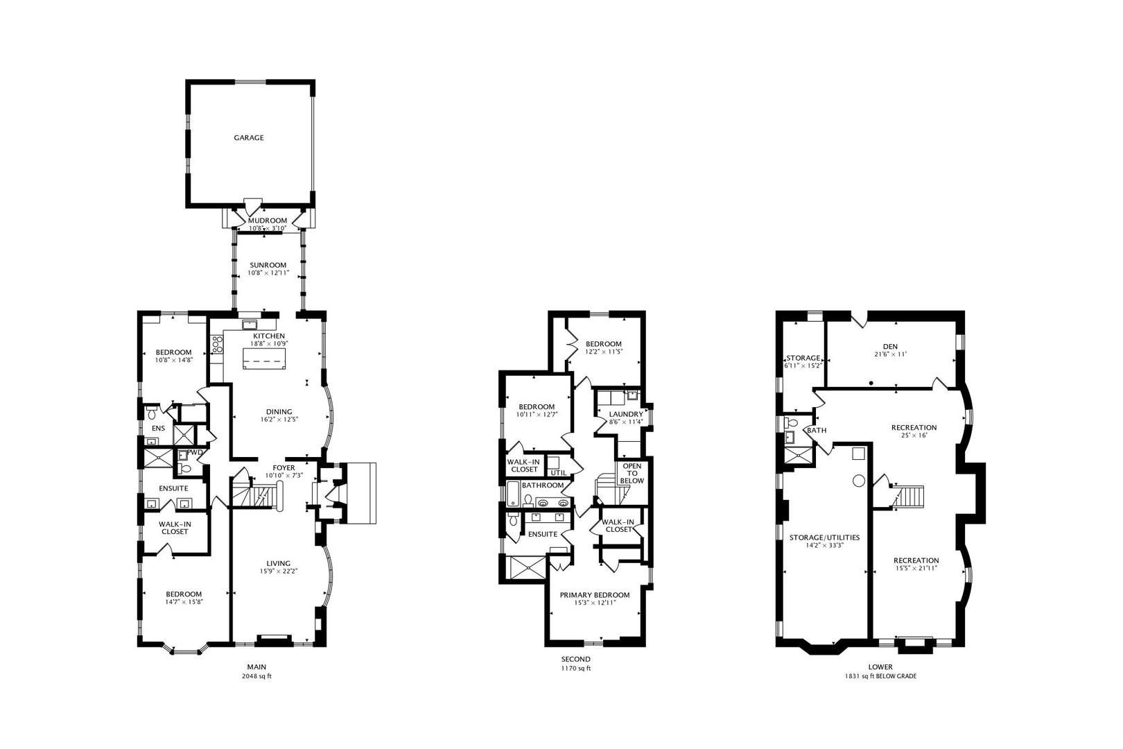
Description
Remarkable Reimagination Bringing a Vintage Home into Today’s Style. Wonderfully done by River Forest’s Premier Builder. Bathed in Light, Spacious, Well Thought Out with Five Bedrooms and Five and a Half Baths Including Luxury Primary Suites on both the First and Second Levels. Attached Garage for the Utmost in Convenience. Huge Lower Level Completely Finished with a Second Family Room and Loads of Storage.
- Principal and Interest
- Property Tax
- HOA fee
- Private Mortgage Insurance









































