Overview
- 81427
- Property ID
- Updated On:
- April 7, 2026
- Independent Homes
- Category
- 4
- Bedrooms
- 3
- Bathrooms
- 2,515 ft2
- Property Size
- 0 ft2
- Property Lot Size
Description
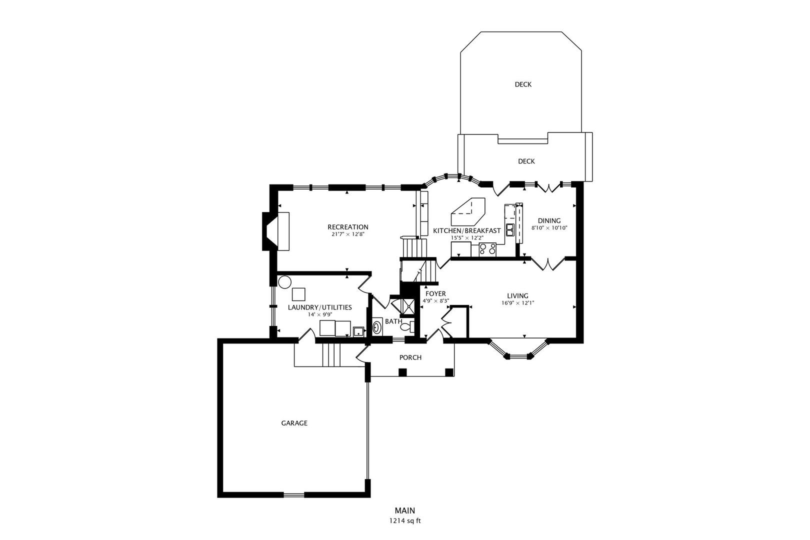
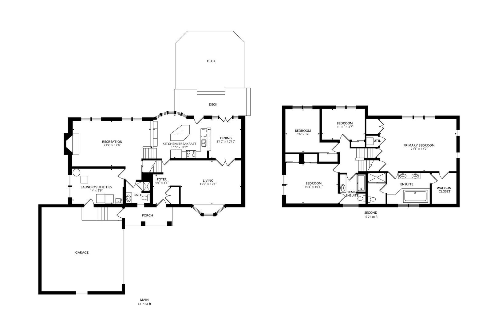
From the moment you walk into this picture-perfect Surrey Ridge West home, you can just feel how well it’s been cared for with a spacious 2,515 sq. ft. floor plan (including the rec room, laundry room & 3rd bathroom). And the primary suite? It’s honestly a dream. It’s a full addition with a walk-in closet (finally enough space!), plus a soaking tub and separate shower-basically your own little retreat after a long day. The whole house just works for real life too. Zoned heating and A/C keep everyone comfortable (no thermostat battles!), hardwood floors make cleanup easier, and the fireplace makes everything feel cozy, especially during those long winter nights. The kitchen and bathrooms are already updated, there’s great lighting throughout, and those classic six-panel doors add such a nice touch. Massive deck and backyard to grill & entertain with an XL shed and 600 sq. ft. crawl space for extra storage. And location-wise, it couldn’t be more convenient-close to shopping, Heritage Park & Pool, Victory Park & Playground, dual language elementary school and blue-ribbon high school, five minutes from downtown Arlington Heights for dining al fresco in the summertime, plus cafes, bars, boutiques and more! Commuter’s dream close to I-90, Route 53, and two Metra stops with easy access to downtown Chicago via the express train from DTA & Arlington Park! “Final & Best Offers” Due by 5:00 PM Monday, April 6, 2026.
- Principal and Interest
- Property Tax
- HOA fee
- Private Mortgage Insurance




































