Overview
- 295571
- Property ID
- Updated On:
- April 18, 2026
- Independent Homes
- Category
- 3
- Bedrooms
- 3
- Bathrooms
- 1,518 ft2
- Property Size
- 0 ft2
- Property Lot Size
Description
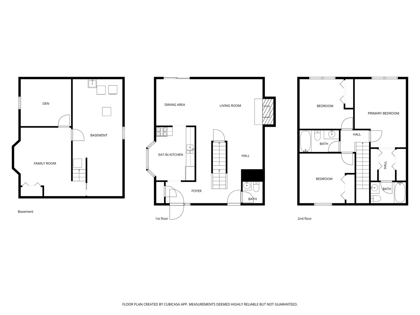
Offer Received! Please submit all offers by 8:00 PM Thursday. Step into comfort, style, and convenience with this exceptional home in one of Gurnee’s most desirable neighborhoods. Located at 1577 Pinetree Drive, this residence has been carefully upgraded over the years, offering a seamless blend of modern features and practical living spaces designed for today’s lifestyle. From the moment you enter, you’ll notice the fresh, contemporary feel of the main level, recently painted and enhanced with updated lighting that brightens every room. The upper level showcases rich hardwood flooring throughout, adding warmth and character, while the finished basement provides a versatile extension of the home-complete with durable luxury vinyl flooring, perfect for entertaining, hobbies, or a private retreat. Behind the scenes, major improvements ensure efficiency and reliability, including a newly installed furnace and humidifier, a newer air conditioning system, and a tankless water heater for endless hot water. The exterior has also been thoughtfully maintained, with a newer roof and driveway contributing to long-term value and curb appeal. The kitchen is equipped for both everyday living and hosting, featuring updated appliances and a functional layout that keeps everything within reach. Additional conveniences like an in-home washer and dryer make daily routines effortless. Outdoors, enjoy a well-designed deck and patio space that invites you to relax, entertain, or simply unwind in your own backyard. Inside, the guest bathroom offers a unique touch with a walk-in soaking tub, combining comfort with accessibility. All of this is set in a prime location just minutes from major attractions, shopping destinations, dining, and easy highway access-making commuting and weekend plans equally convenient. With its thoughtful updates, flexible living areas, and excellent location, this home presents a fantastic opportunity to enjoy the best of Gurnee living.
- Principal and Interest
- Property Tax
- HOA fee
- Private Mortgage Insurance









































