Overview
- 302940
- Property ID
- Updated On:
- April 19, 2026
- Independent Homes
- Category
- 4
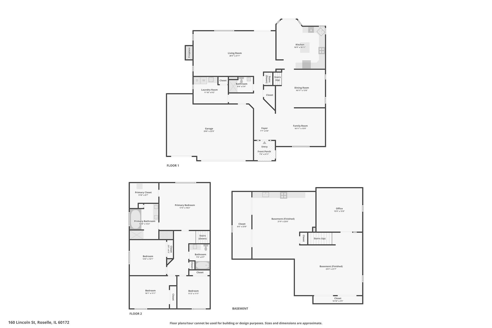
- Bedrooms
- 3
- Bathrooms
- 2,811 ft2
- Property Size
- 0 ft2
- Property Lot Size
Description
This beautiful home features an open and airy floor plan with 4 spacious bedrooms and 3 full bathrooms. The primary suite offers a luxurious retreat with a separate shower, large soaking tub, double sinks, and a generous walk-in closet. Enjoy vaulted and soaring cathedral ceilings in the living and dining rooms, creating a bright and inviting atmosphere. The home showcases hardwood floors, a cozy fireplace, and an impressive gourmet kitchen with granite countertops, a center island, stainless steel appliances, and quality cabinetry. The kitchen provides convenient access to a private deck, perfect for entertaining or relaxing. The extra-large family room sits adjacent to the kitchen, making it ideal for gatherings. The fully finished basement offers additional living space including a large recreation area, office/den, plenty of storage, and even an additional kitchen area. Located in a fantastic area near downtown Roselle, with easy access to the Metra station, Route 390, shopping, dining, and more.
- Principal and Interest
- Property Tax
- HOA fee
- Private Mortgage Insurance








































