1600 W Dempster Street, Park Ridge, IL

Overview

  • 248031
  • Property ID
  • Updated On:
  • April 14, 2026
  • 1 ft2
  • Property Lot Size

Description

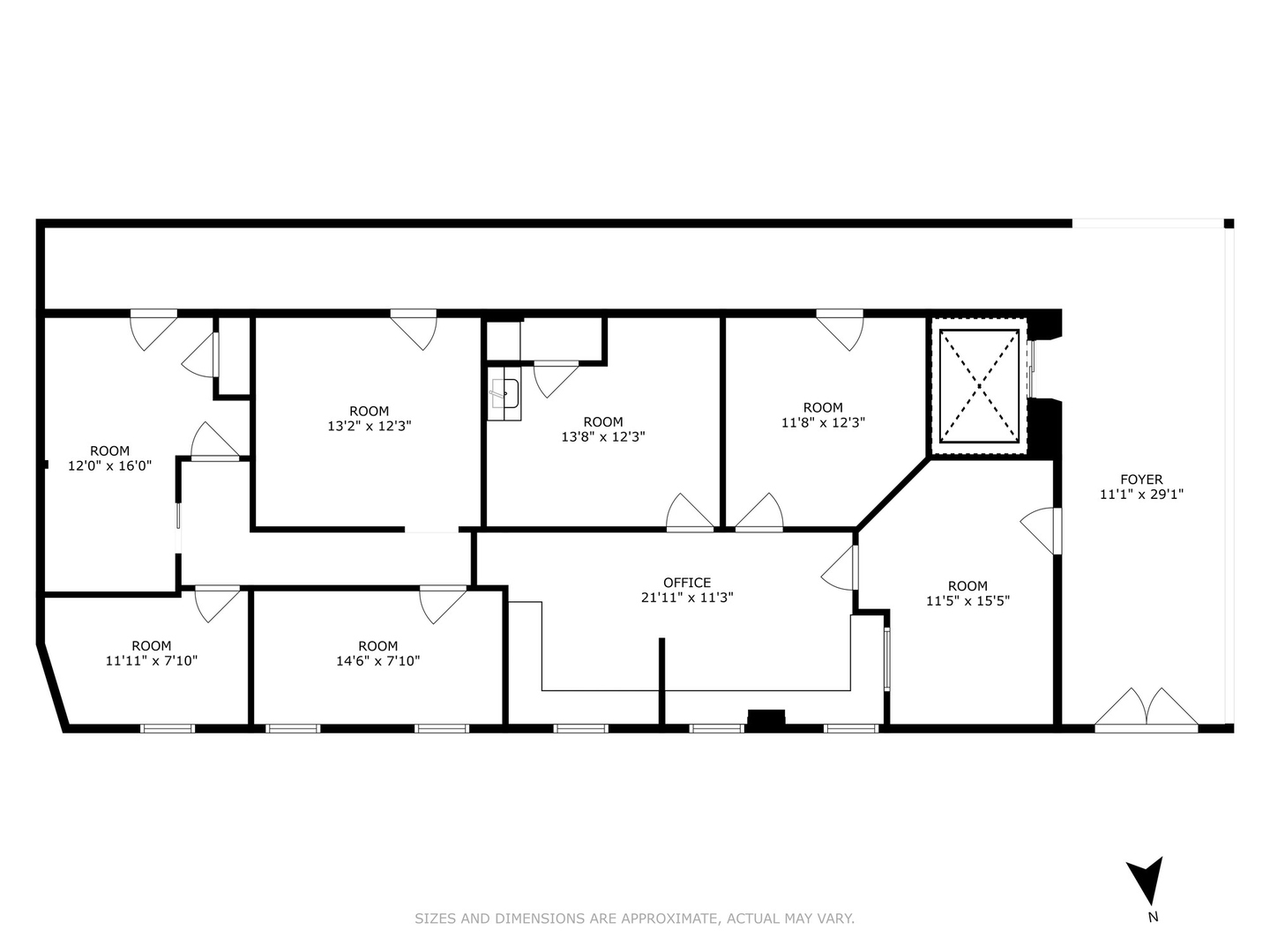
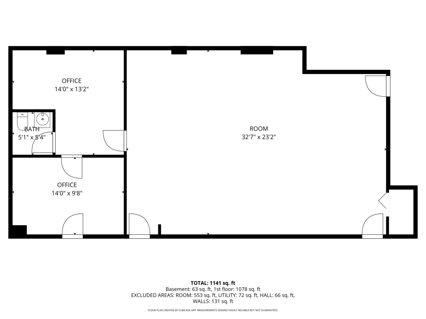
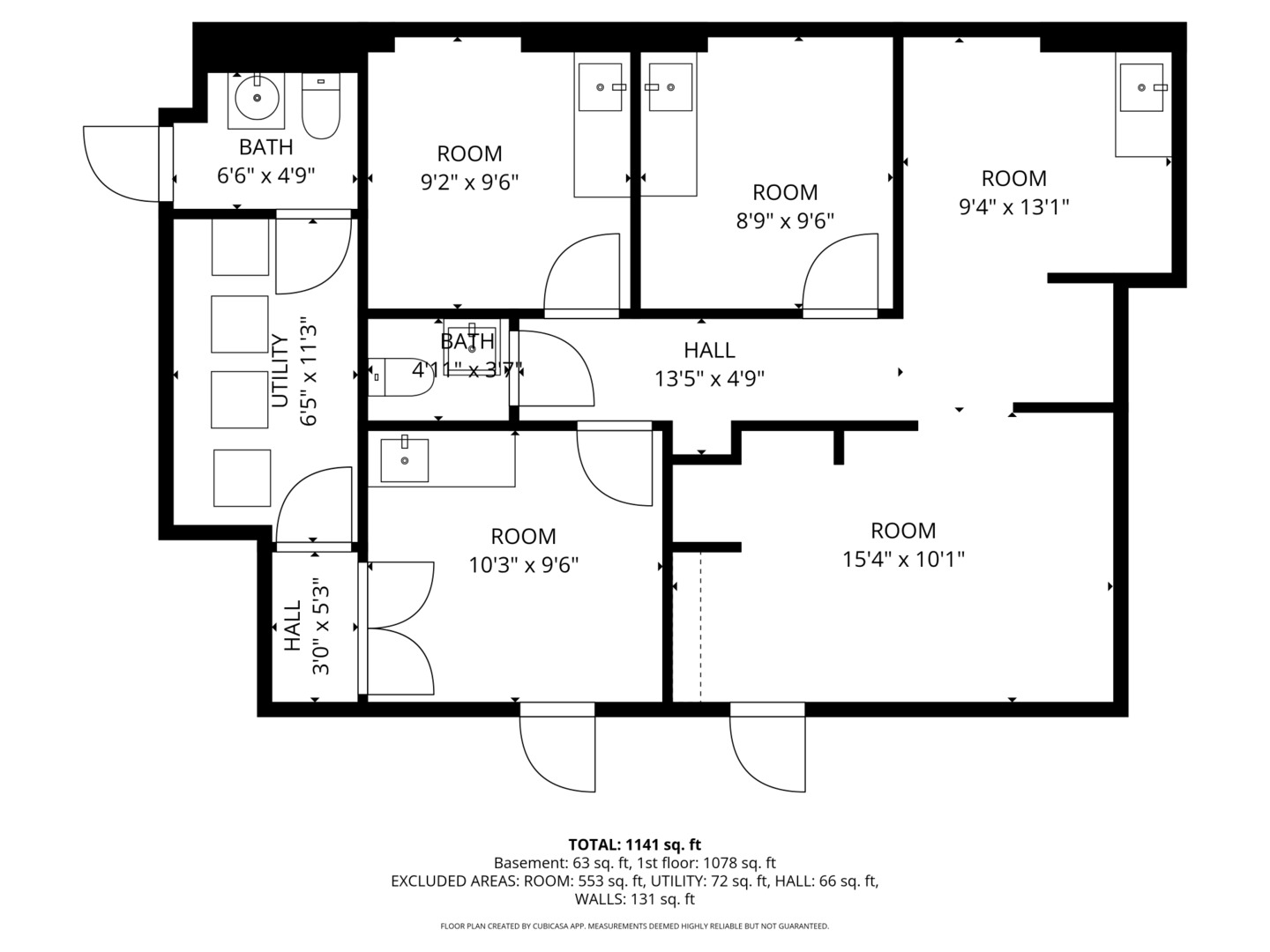
Rarely offered space in a premier building next to Lutheran General Hospital and Potillos!!! Outstanding Visability on highly trafficked Dempster Street with over 40,000 vehicles per day. Multiple units available now 600 to 2000 sq. ft. Space was previously built out as a Medical Doctors Office, general office space, and Built out Physical Therapy Unit. Incredible opportunity to join top professional office tenants offering a variety of services. Great Visibility with Good Mix of Medical and Service businesses, with ample free parking, in an elevator building. The space is great for medical, physical therapy, architect, legal, tax preparer, estate planning, insurance agency, medical spa, yoga studio and market research. Available bright office spaces is surrounded by windows and natural light and ready for immediate occupancy. Ready for your new business come in and get to work!!!!!

Climate Control
Air Conditioning
Other Features
Central Air
Separate Meters
Varies by Tenant

yelp logo

Similar Listings

For Rent

3026 N Central Avenue, Chicago, IL

Come and establish your business in this ample and pristine space. It offers private offic ...
For Sale

7017 North Avenue, Oak Park, IL

$399,000
Great location includes 5 parking spots, on busy street with ample parking for clients, ne ...
Information for the property at 1600 W Dempster Street, Park Ridge, IL, 60068 (Property ID: 248031) is deemed reliable but not guaranteed. Property details, pricing, and availability are subject to change without notice. Buyers should independently verify all information before making any real estate decisions.

Compare Listings

Sunita Kakarlapudi