Overview
- 324488
- Property ID
- Updated On:
- April 27, 2026
- Independent Homes
- Category
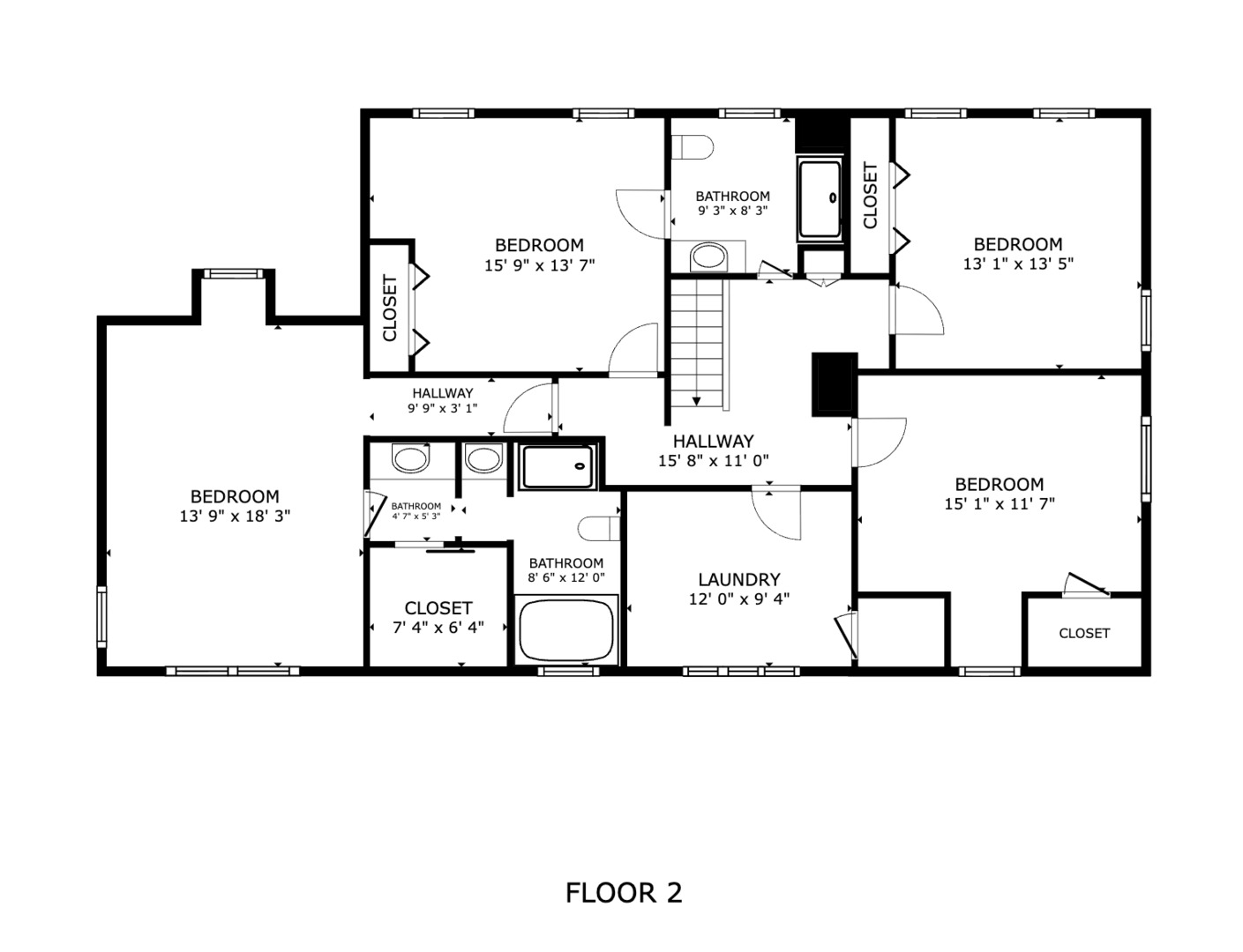
- 4
- Bedrooms
- 3
- Bathrooms
- 3,256 ft2
- Property Size
Description
Welcome to Sunset Meadow-one of Geneva’s most desirable neighborhoods-where charm, space, and location come together beautifully. Do you believe in love at first sight? This home might just convince you. Tucked away on a quiet, secluded cul-de-sac and backing to an open space, it offers a rare sense of privacy with a fully fenced backyard-perfect for relaxing, entertaining, or letting kids play freely. And the location? It’s hard to beat. You’re just minutes-walk or quick bike ride-to historic downtown Geneva, where you can enjoy boutique shopping, restaurants, festivals, and the Metra station. Plus, you’re steps from Sunset Pool, the park, and the Rec Center-truly a lifestyle location. Inside, you’ll immediately notice this is not your typical cookie-cutter home. Hardwood floors run throughout, and every space feels thoughtfully designed with character-crown molding, wainscoting, French doors, alcoves, and antique-style details add warmth and personality at every turn. The home features spacious rooms throughout, a bright and open main level perfect for gathering, and a sunroom that brings in beautiful natural light. The kitchen flows seamlessly into the living areas, making it ideal for everyday living and entertaining. Upstairs, you’ll love the large second-floor laundry room and generously sized bedrooms. The primary suite offers comfort and function with a walk-in closet and double vanity bath.Additional highlights include two fireplaces, a private deck, and an oversized 2-car garage.This is one of those homes you truly have to see in person-you’ll be surprised by the space, the character, and the setting.
- Principal and Interest
- Property Tax
- HOA fee
- Private Mortgage Insurance






































