Overview
- 219386
- Property ID
- Updated On:
- April 13, 2026
- Independent Homes
- Category
- 2
- Bedrooms
- 3
- Bathrooms
- 1,456 ft2
- Property Size
- 0 ft2
- Property Lot Size
Description
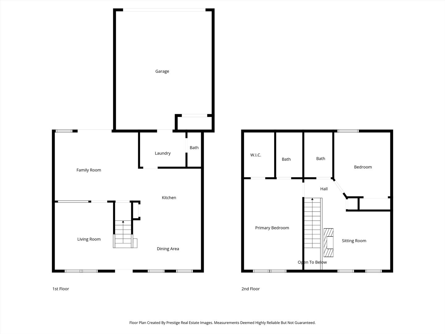
Welcome to Victoria Park! A community known for its charm, convenience, and sense of home. This spacious 2-bedroom, 2.5-bath residence with a loft offers one of the larger models in the neighborhood, designed with both comfort and flexibility in mind. The open main level flows effortlessly, creating a space that feels both inviting and functional for everyday living and entertaining. Upstairs, the loft presents endless possibilities and can easily be converted into a third bedroom, home office, or additional lounge space. The primary suite offers a private bath, while the additional bedroom provides comfort and versatility. Enjoy outdoor living with a brick patio and fenced-in yard-perfect for quiet evenings or hosting. A 2-car garage adds convenience, while the location places you near the heart of Aurora, with easy access to parks and community amenities. A rare opportunity to own a larger, flexible floor plan in a sought-after neighborhood.
- Principal and Interest
- Property Tax
- HOA fee
- Private Mortgage Insurance


































