Overview
- 505679
- Property ID
- Updated On:
- April 28, 2026
- Independent Homes
- Category
- 4
- Bedrooms
- 3
- Bathrooms
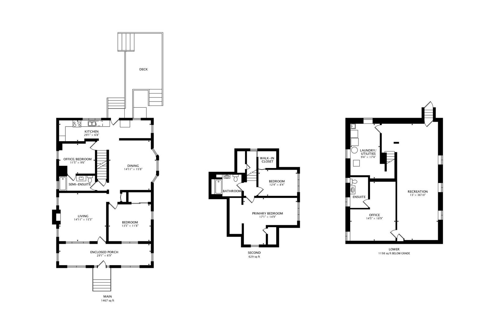
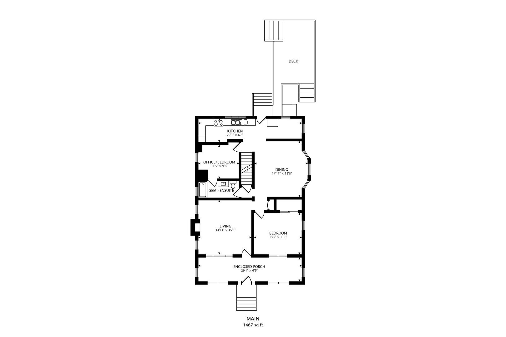
- 3,294 ft2
- Property Size
Description
Fantastic home in booming west Evanston! Extra-wide, updated bungalow on a huge lot. The enclosed front porch / mudroom has windows on 3 sides bringing lots of light into the front of the home. It opens into the lovely, bright living room. Windows frame the wood burning fireplace & there is also a stained glass window. South-facing bay windows light up the large separate dining room. The recently updated kitchen has granite counters & stainless steel appliances. It is open to the dining room & also leads out to the very large back deck. Two bedrooms (one used as an office) on this level as well as an updated full bath. The very charming 2nd level has 2 bedrooms (again one used as an office) & another full bath. Pitched ceilings & skylights (new in 2021) in the bedrooms. Finished basement has larger south-facing windows & good natural light. Enormous rec room as well as an office (currently set up as a bedroom) & a half bath. There’s a patio as well as the deck in back, a very large yard, & a newer 2.5 car garage. Sump pump & drain tile in basement. Roof was new in 2021. New, efficient furnace in 2017. Central air. Hardwood floors on 1st floor. Chimney lined & fireplace used regularly but sold “as is.” Great location close to the high school with easy access to downtown Evanston. Just around the corner from McCormick Boulevard for easy access to the highway as well as walking & biking trails. Beginning in the 2026-27 academic year, this house will be in the DEWEY elementary school district. KING ARTS, the K-8 fine arts magnet school, is 2 blocks away at Lake & McDaniel. Great opportunity!
- Principal and Interest
- Property Tax
- HOA fee
- Private Mortgage Insurance



















































