Overview
- 386268
- Property ID
- Updated On:
- April 22, 2026
- Independent Homes
- Category
- 4
- Bedrooms
- 3
- Bathrooms
- 2,850 ft2
- Property Size
- 1 ft2
- Property Lot Size
Description
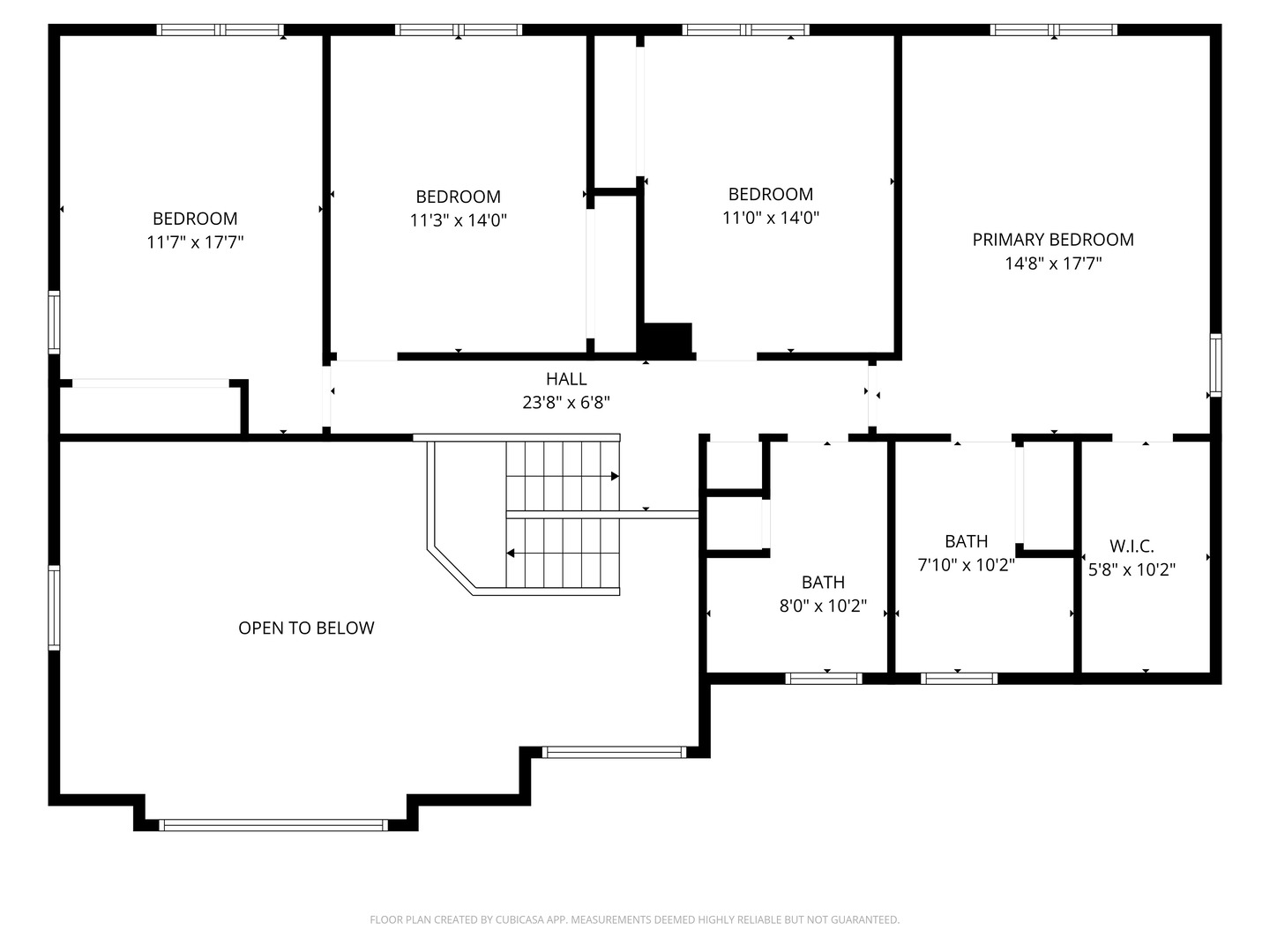
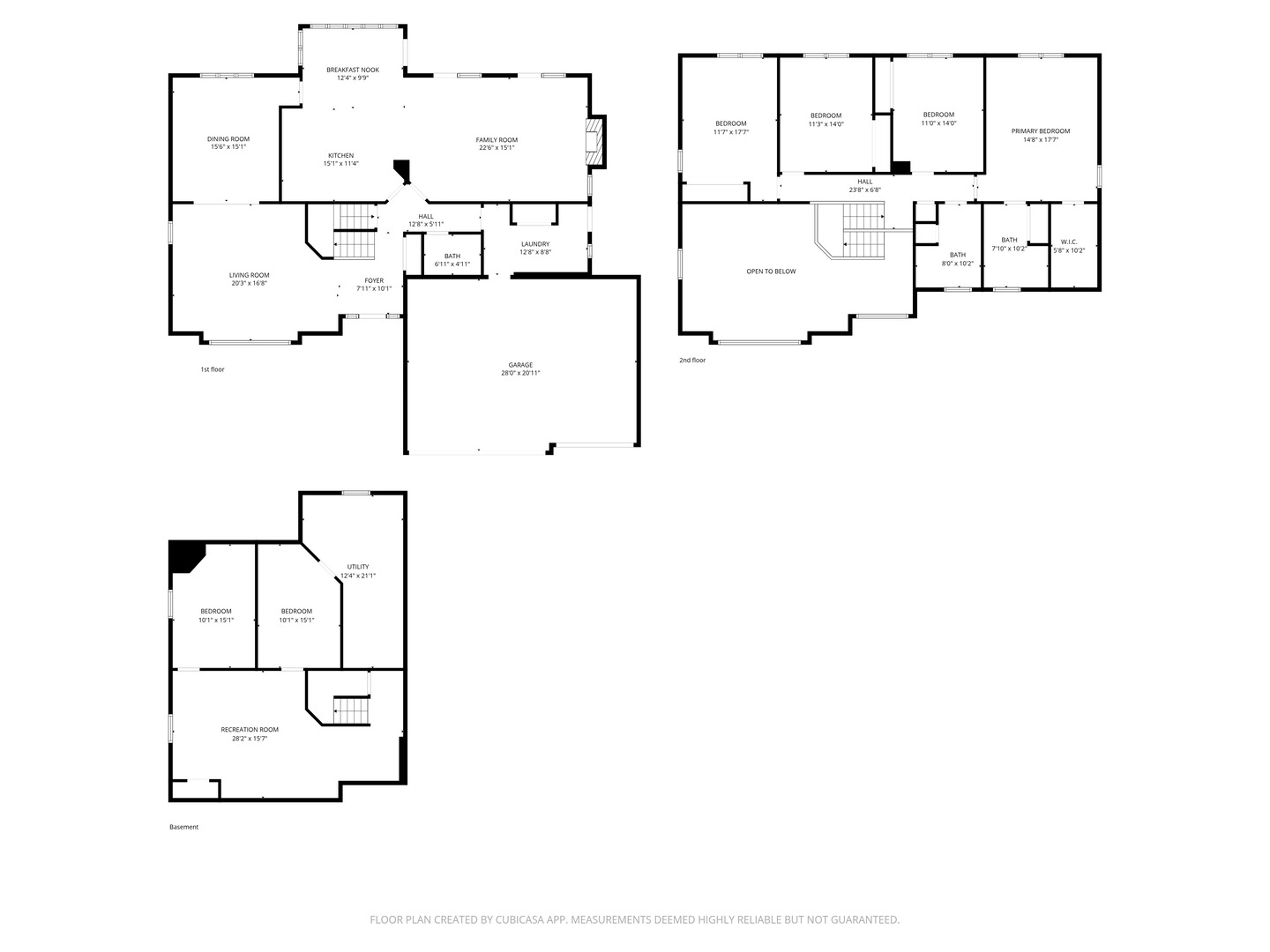
This beautifully maintained home offers the perfect blend of lifestyle and functionality, now featuring 6 bedrooms, including 2 in the newly finished basement-ideal for related living, guests, or additional flex space. The second level hosts 4 spacious bedrooms, including a primary suite complete with a private bath, along with an additional full bathroom. A dramatic two-story foyer welcomes you into a thoughtfully designed main level featuring formal living and dining rooms, an eat-in kitchen, and a cozy family room with fireplace. A convenient main-floor laundry room and half bath add to the home’s everyday practicality. The gourmet kitchen, updated in 2008, features an eat-in area with oversized windows overlooking the backyard. Step outside to a fully fenced yard designed for both relaxation and entertaining, complete with an in-ground heated pool (2002), concrete surround, and brick paver patio-your own private outdoor retreat. Built by Cranna Construction, this home showcases quality craftsmanship throughout. Additional updates include roof (2025), HVAC (2012), Solar Panels and Marvin casement windows throughout most of the home. The property has been meticulously maintained by its current owners. Located in a desirable area with top-rated schools. Lawn sprinkler system conveyed as-is.
- Principal and Interest
- Property Tax
- HOA fee
- Private Mortgage Insurance























































